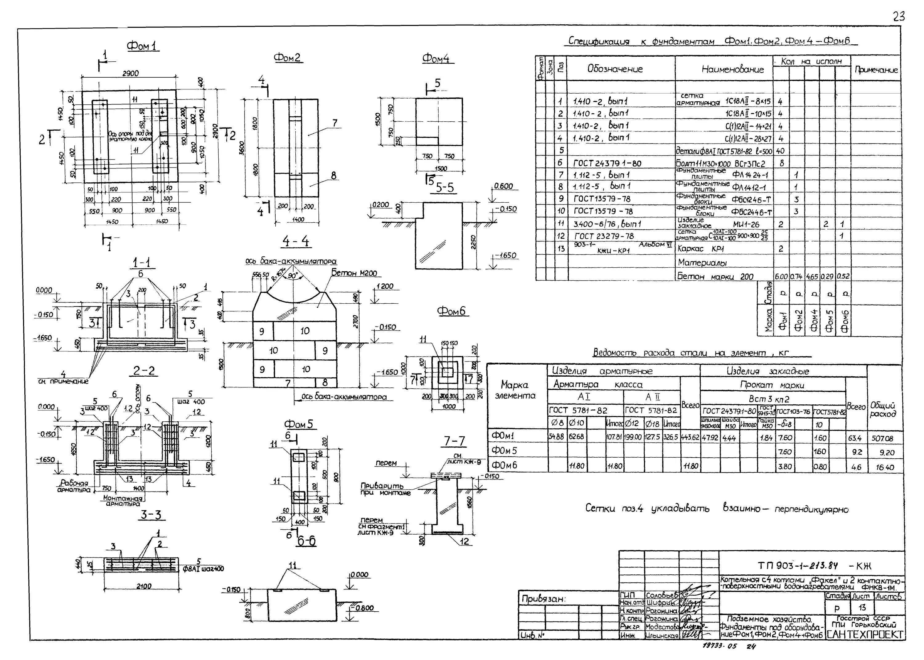
1 903