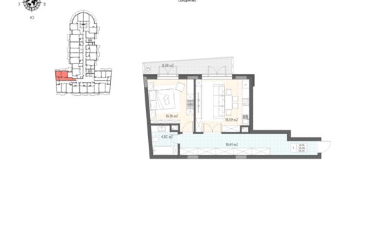
234 этаж