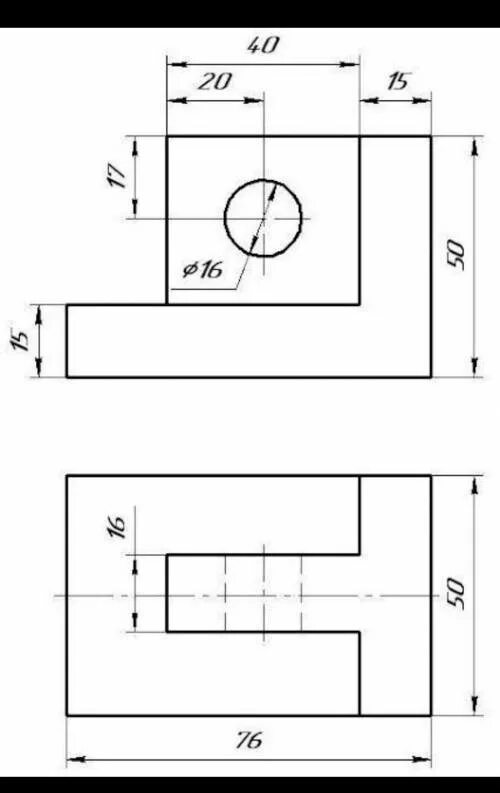
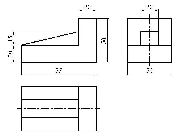
3 вид по двум данным