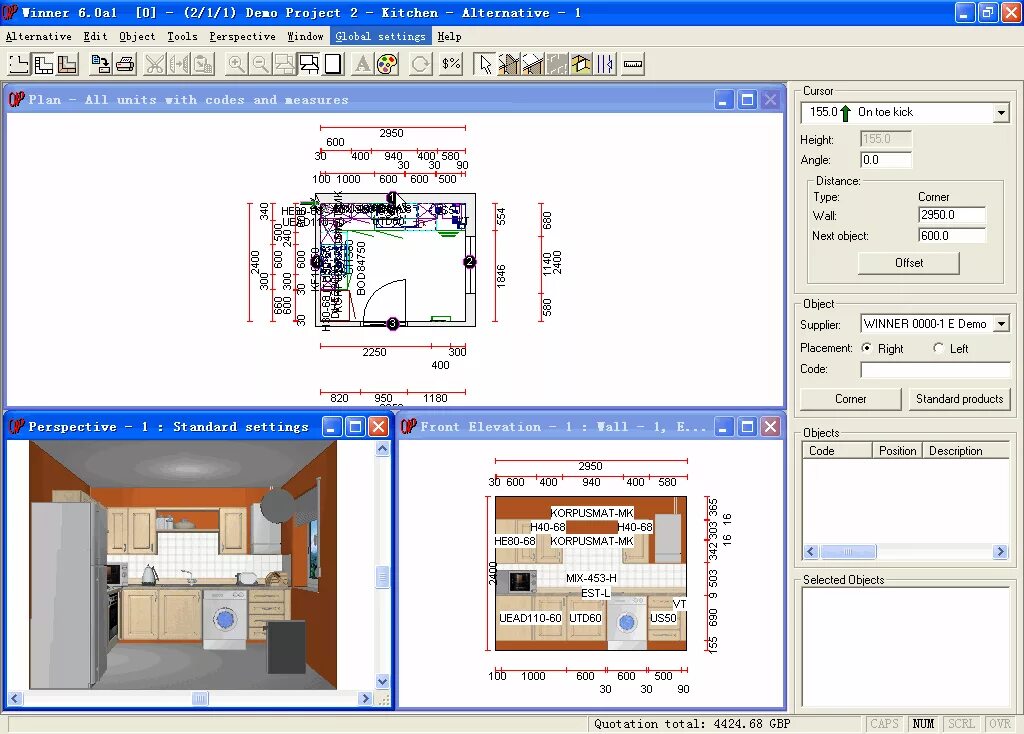
3d design suite