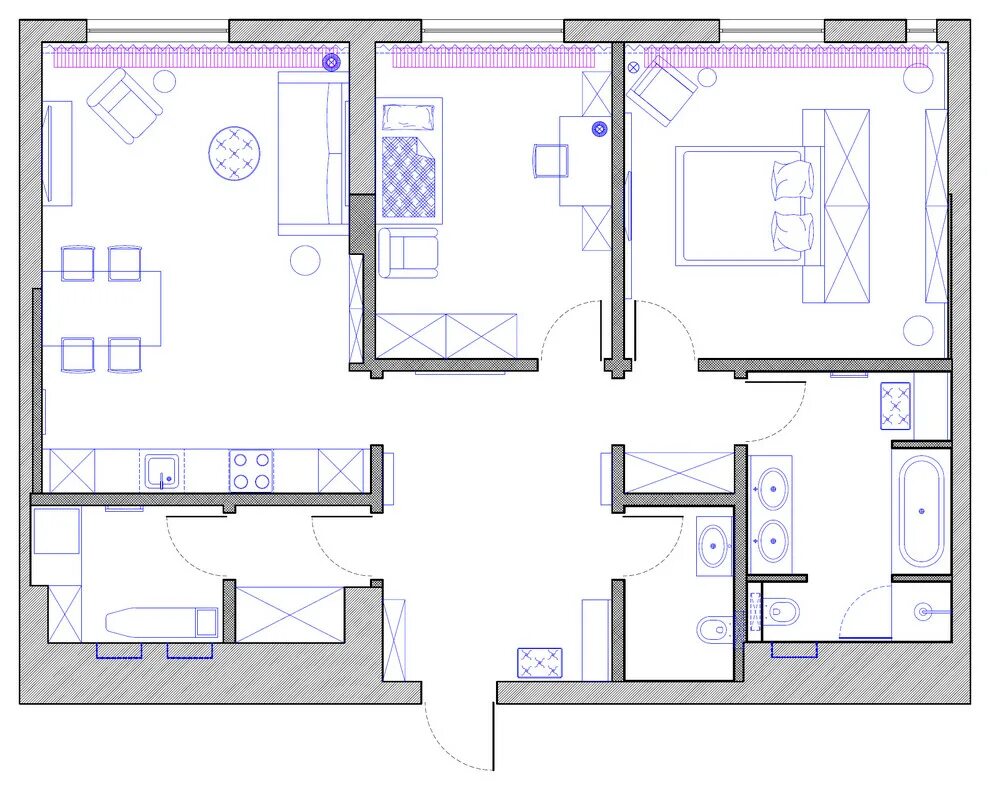
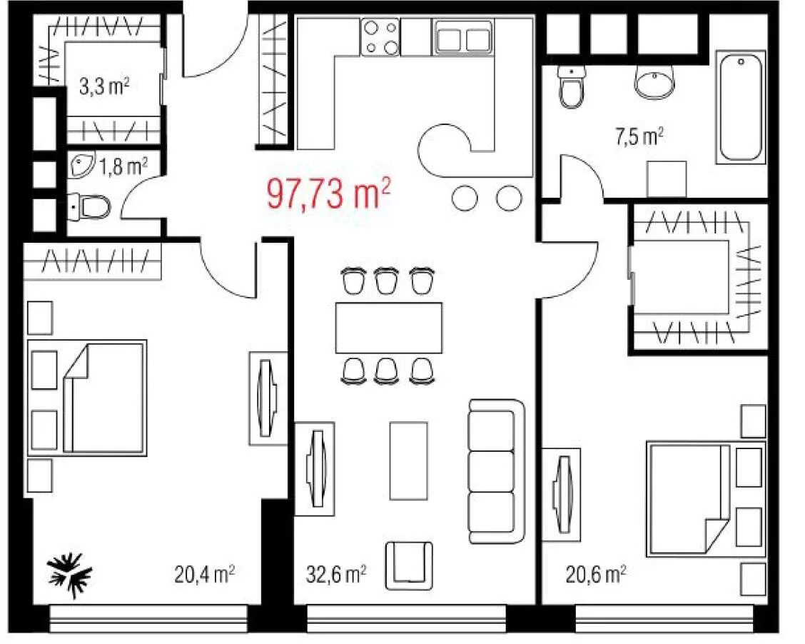
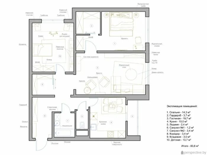
80 метров планировки