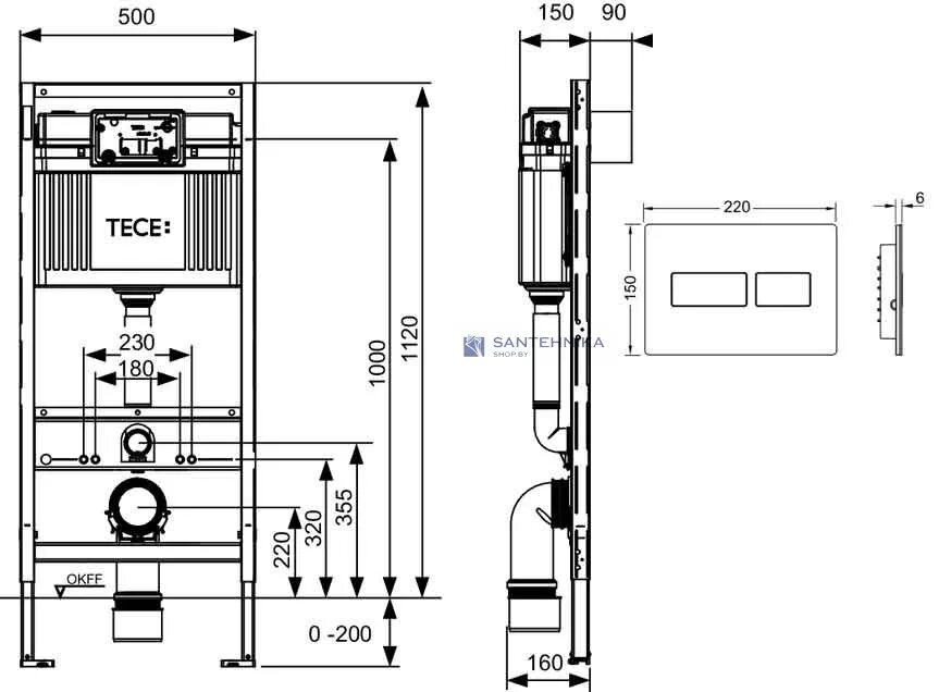
9300302 модуль для установки унитаза