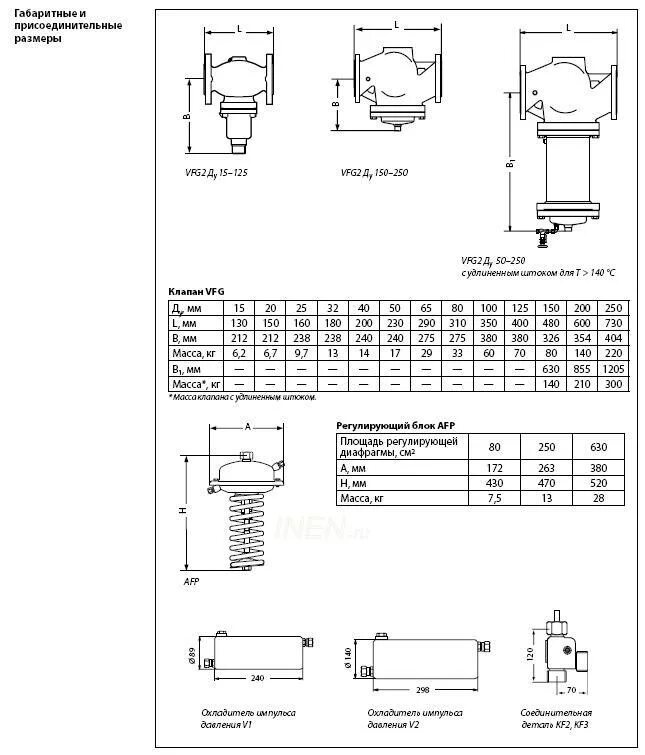
Afp vfg