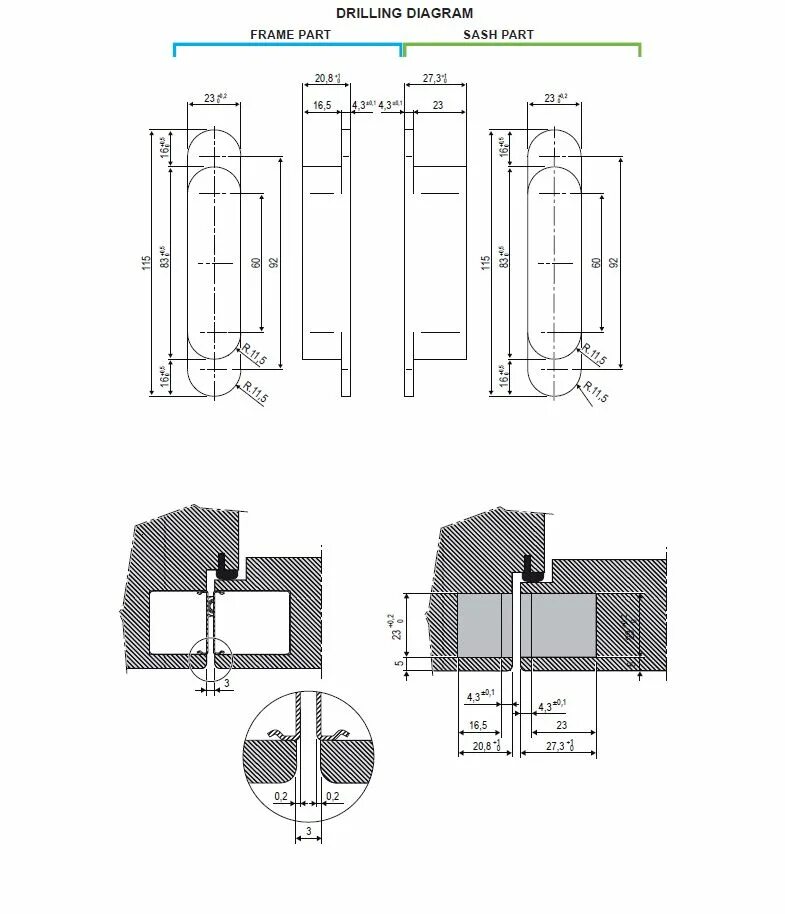
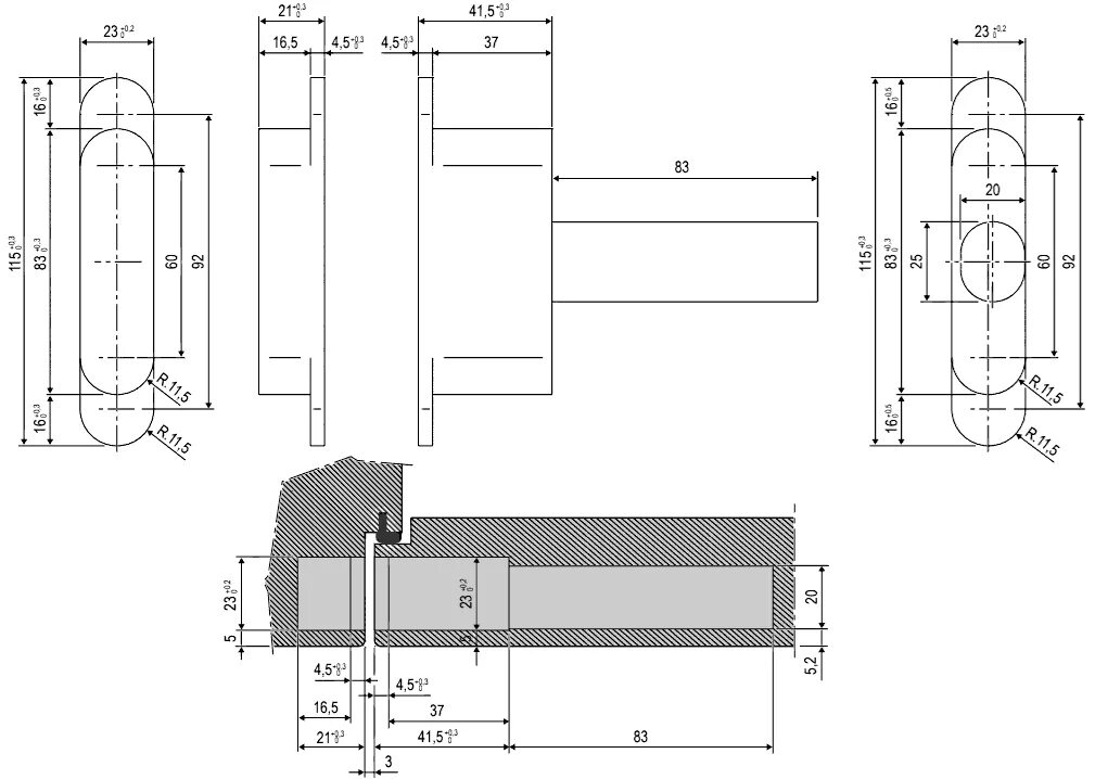
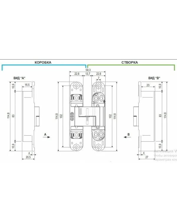
Agb 3.0