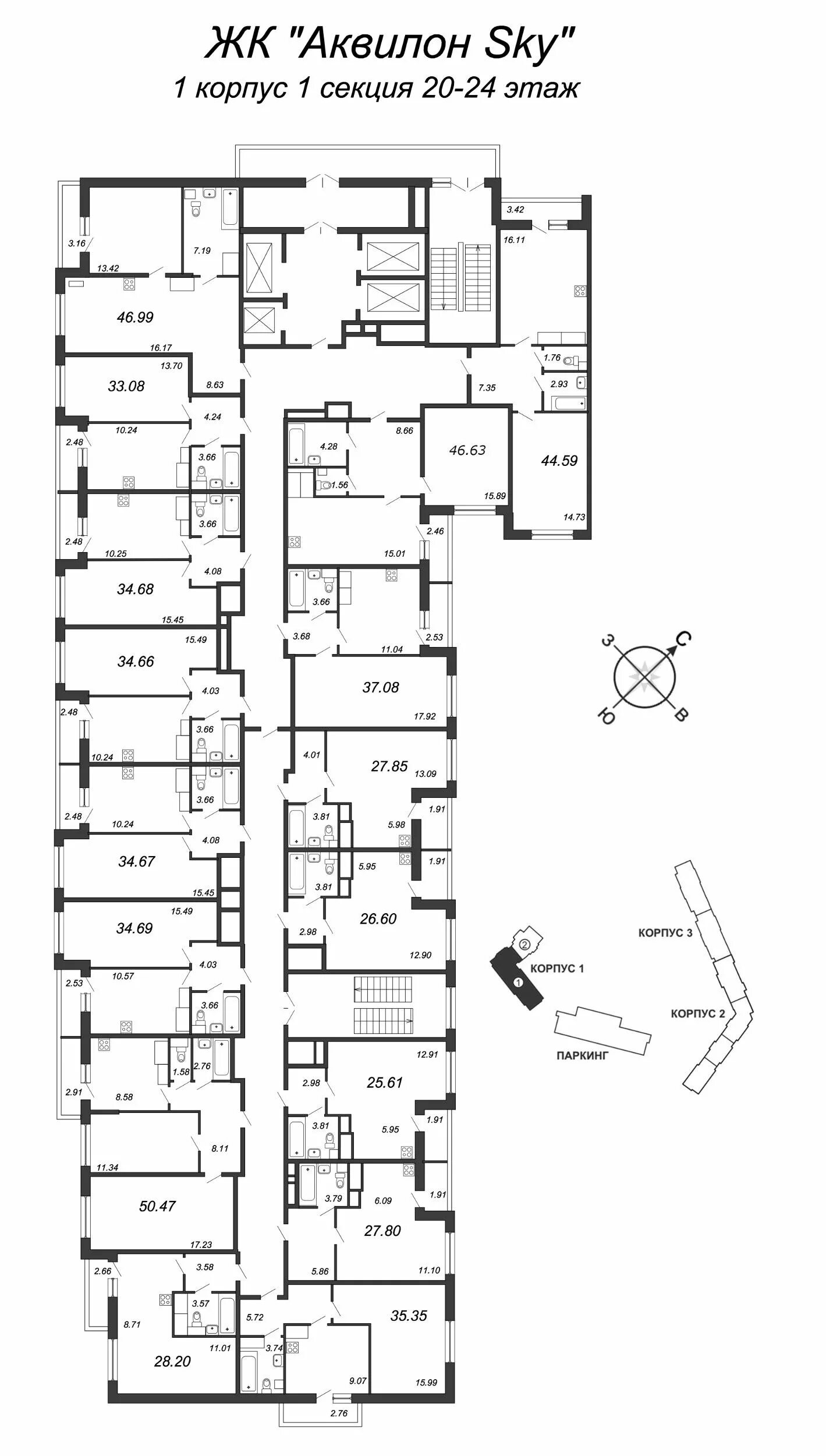
Аквилон скай спб