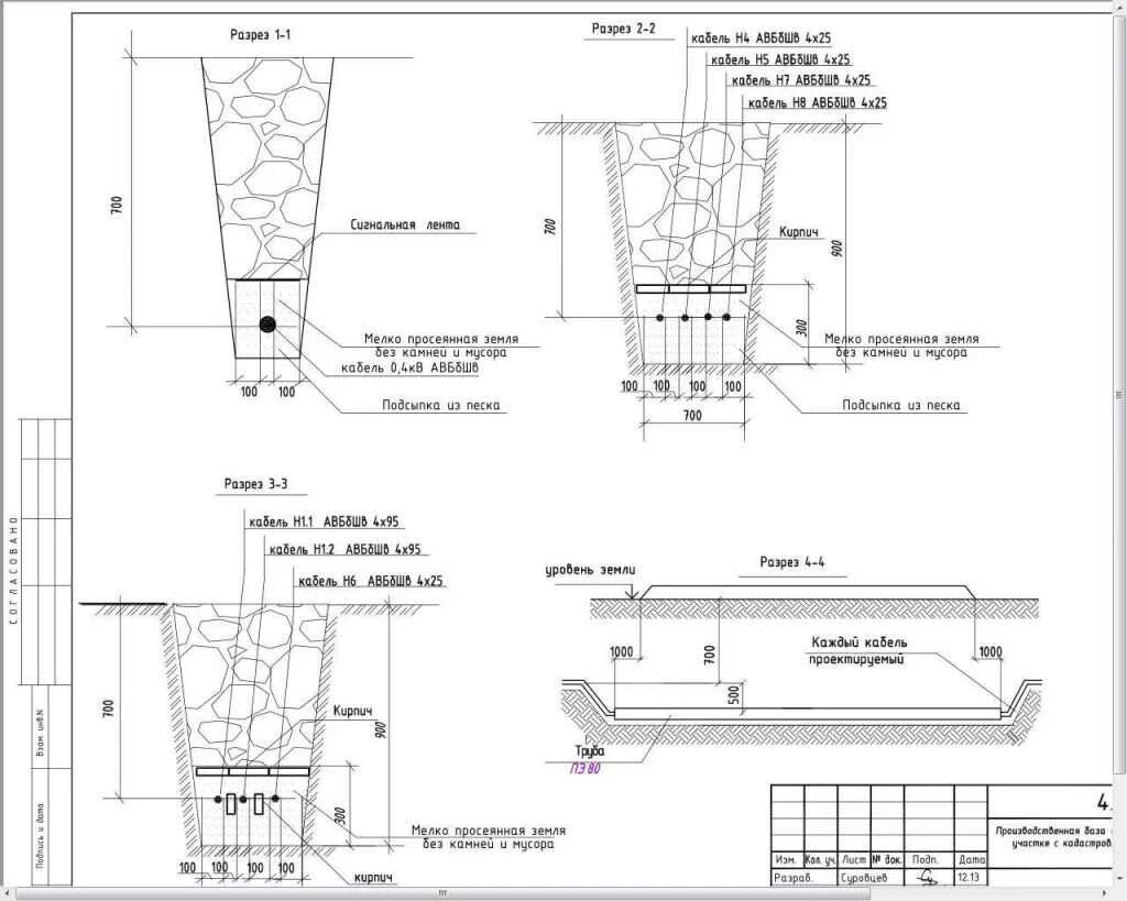
Альбом прокладка кабеля в траншее