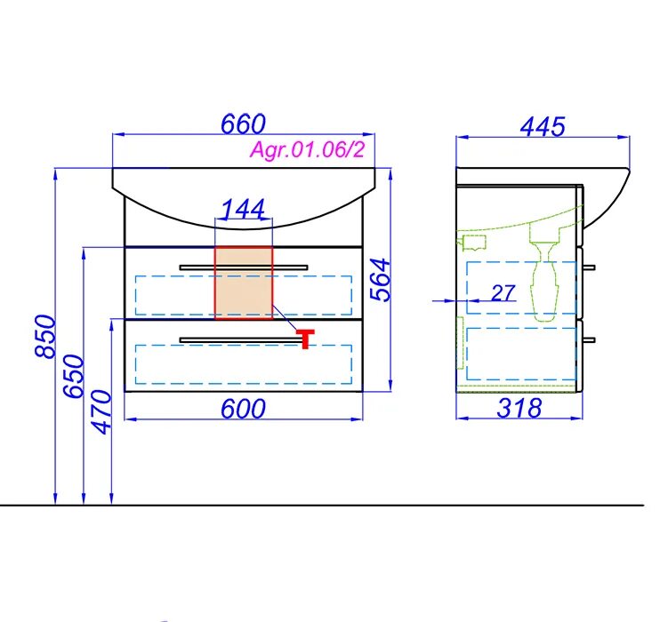
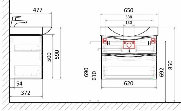
Аллегро 65