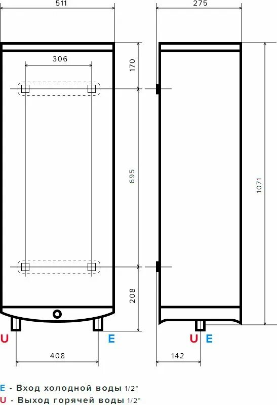
Ariston abs vls pro r