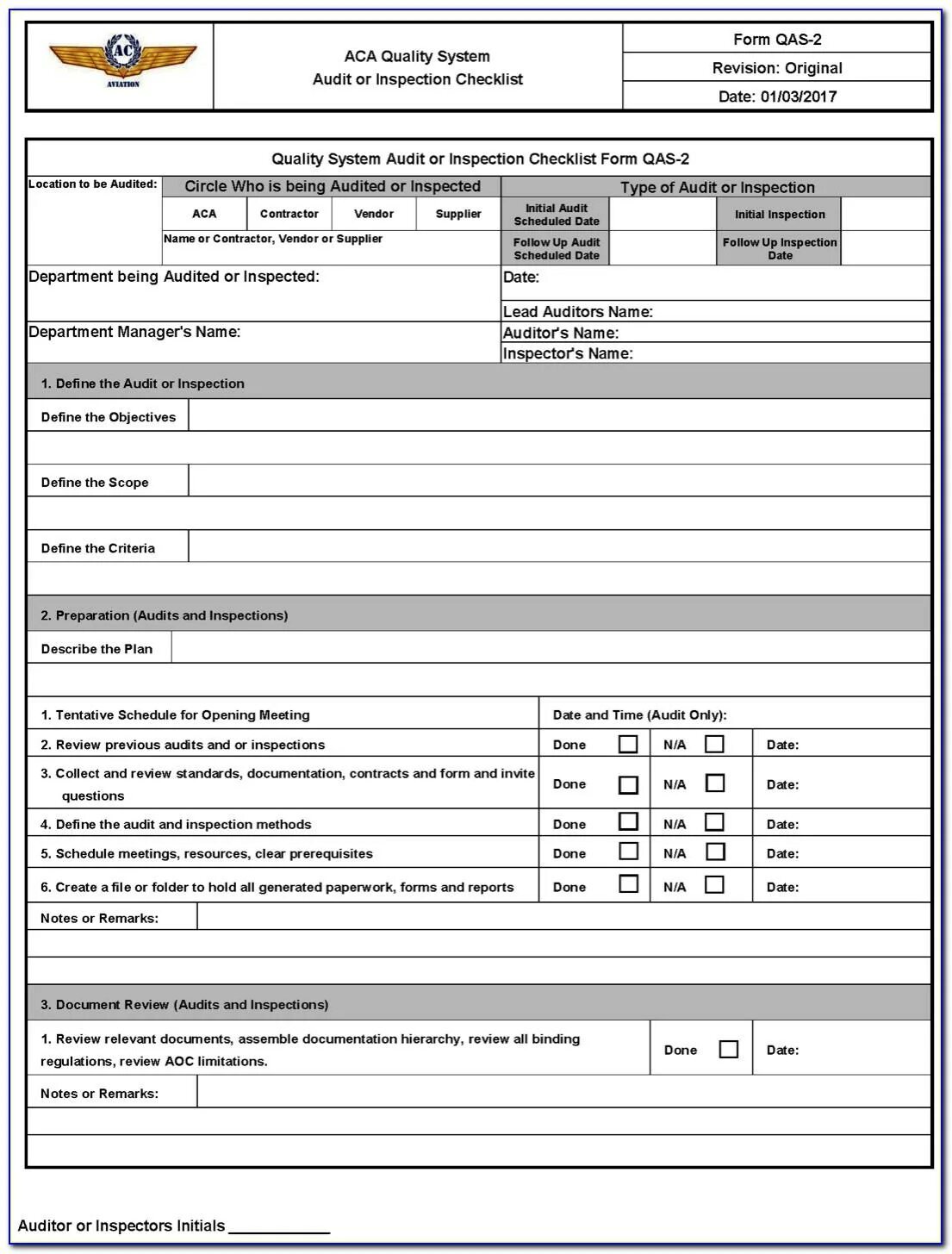
Audit name