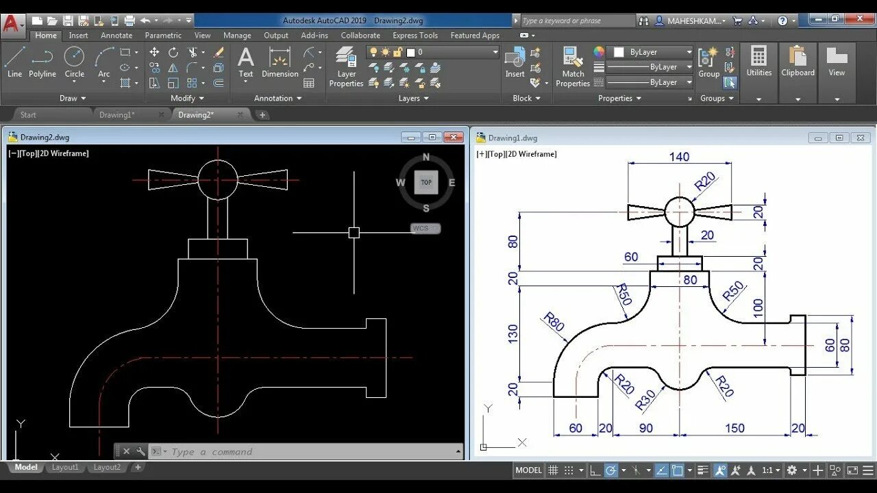
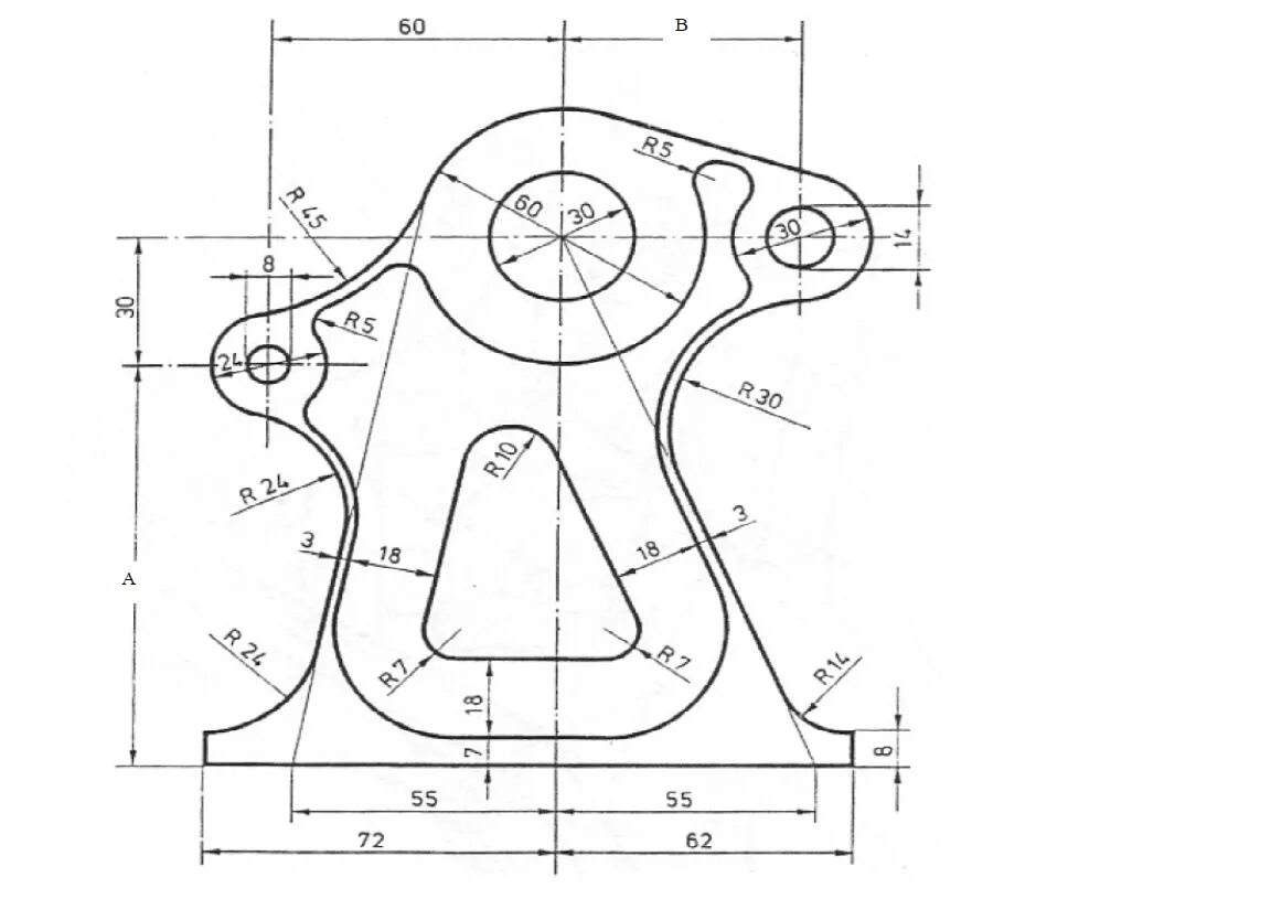
Autocad 2d