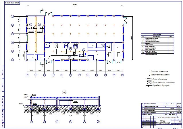
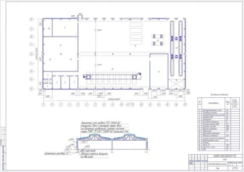
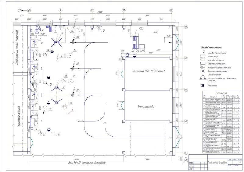
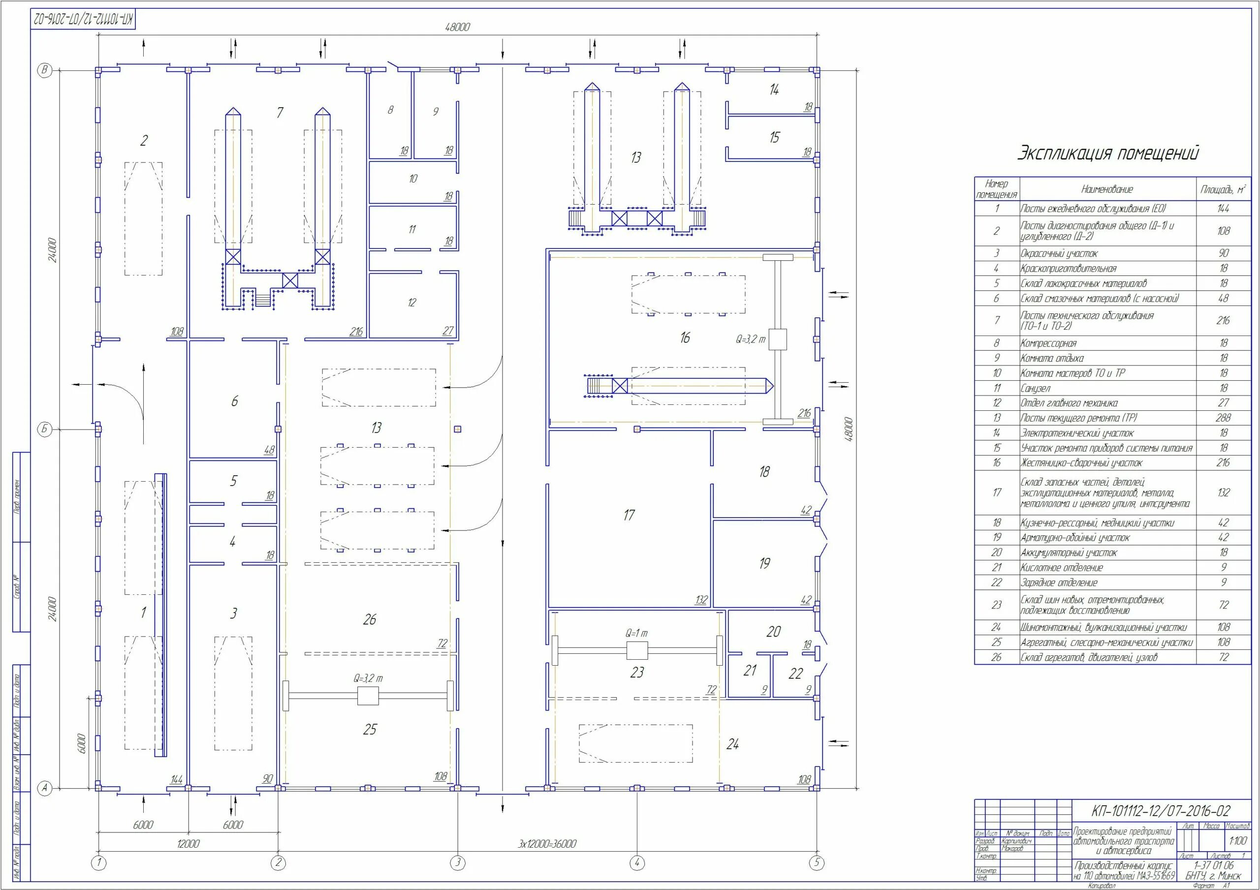
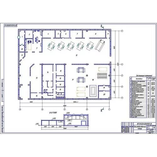
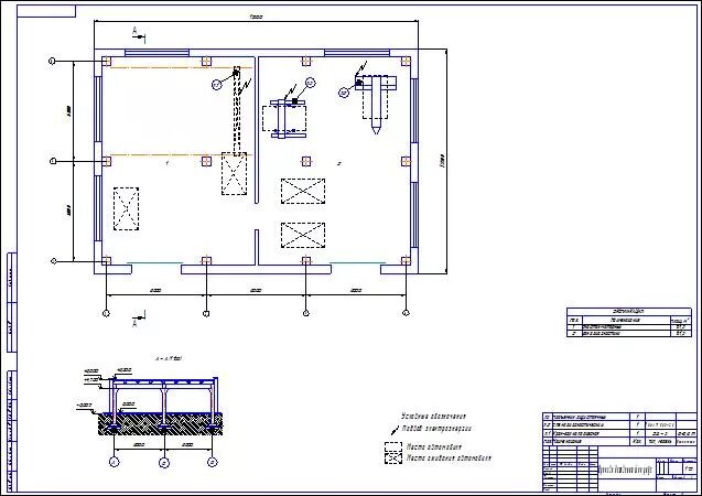
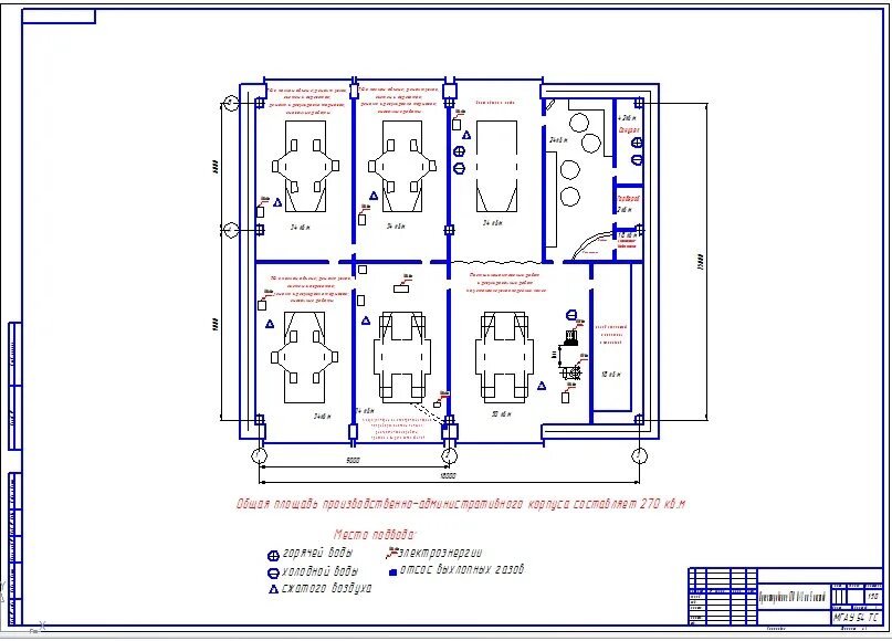
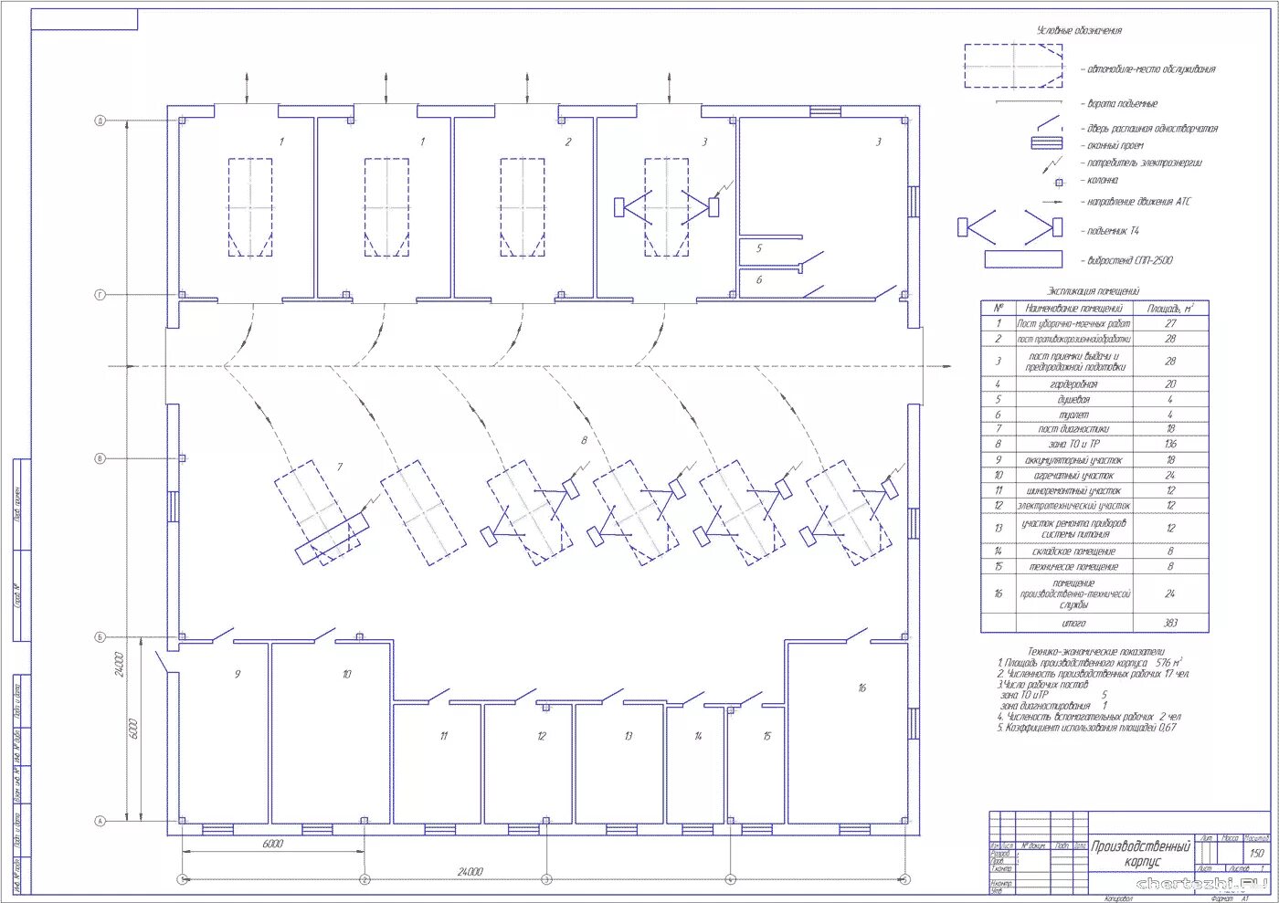
Автосервис курсовая