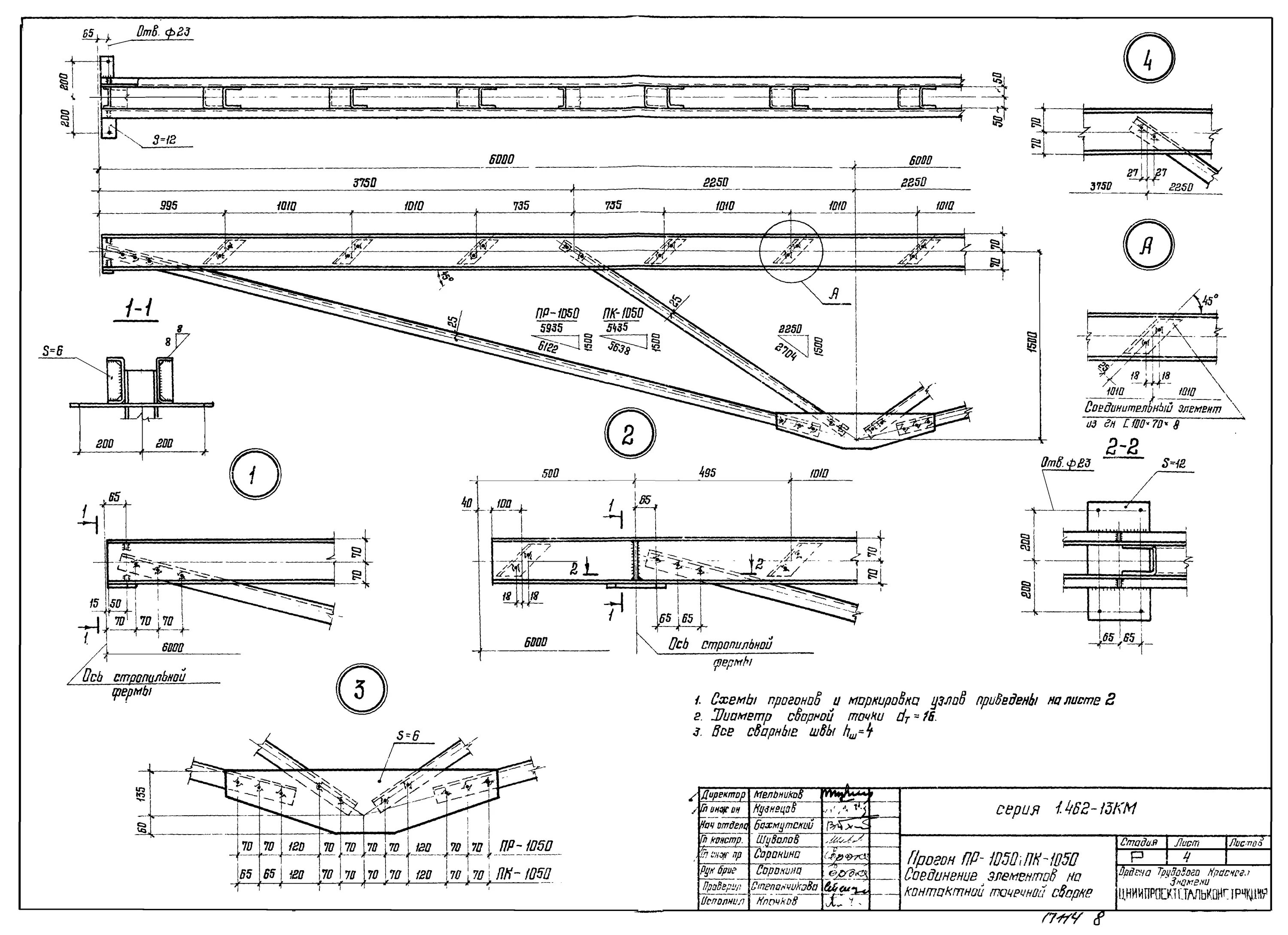
Балка пролет 12 м