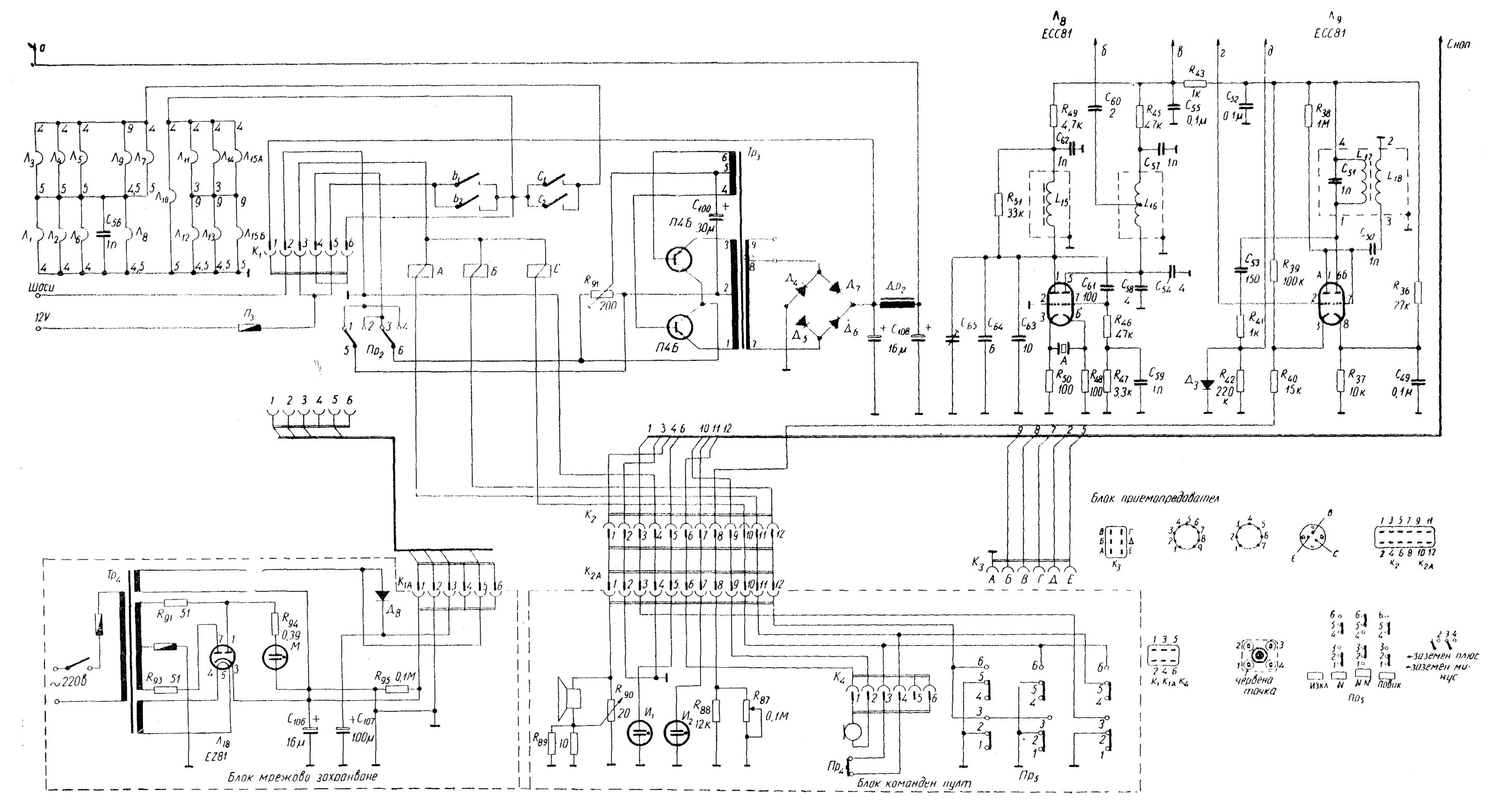
Блок рсв