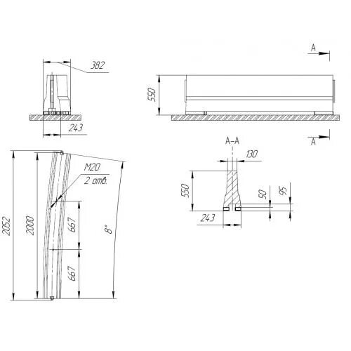
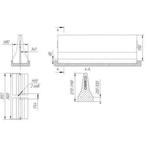
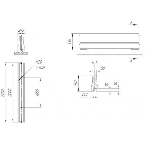
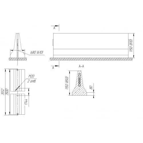
Блоки 12 дд