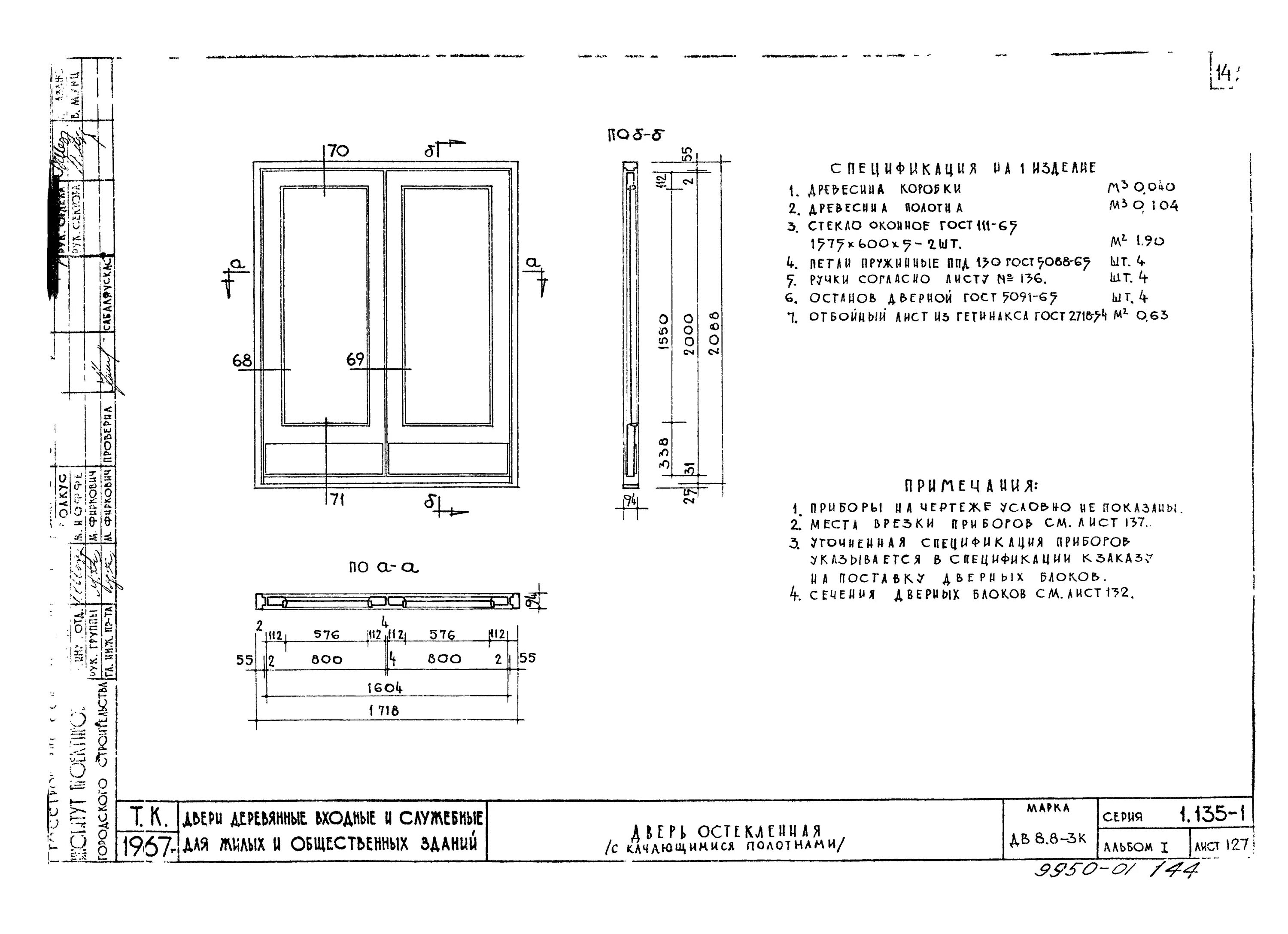
Блоки дверные деревянные внутренние