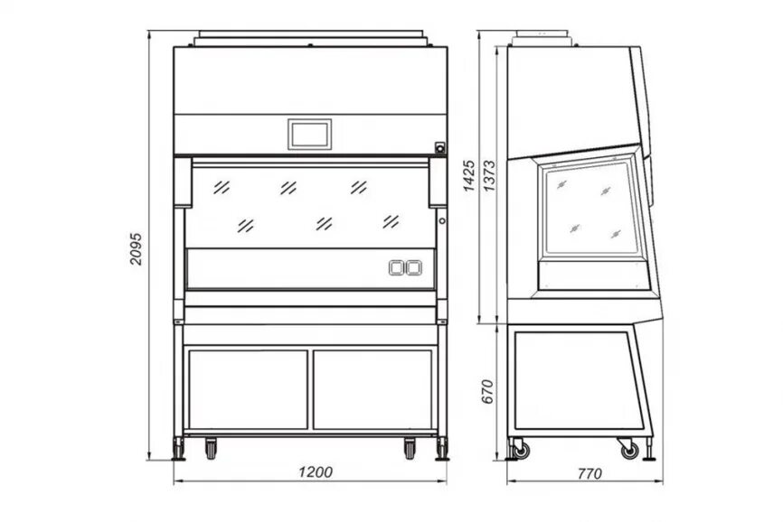
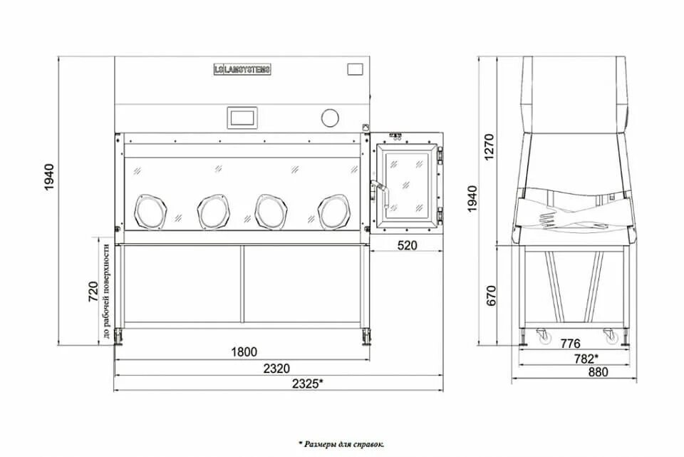
Бмб ii класса