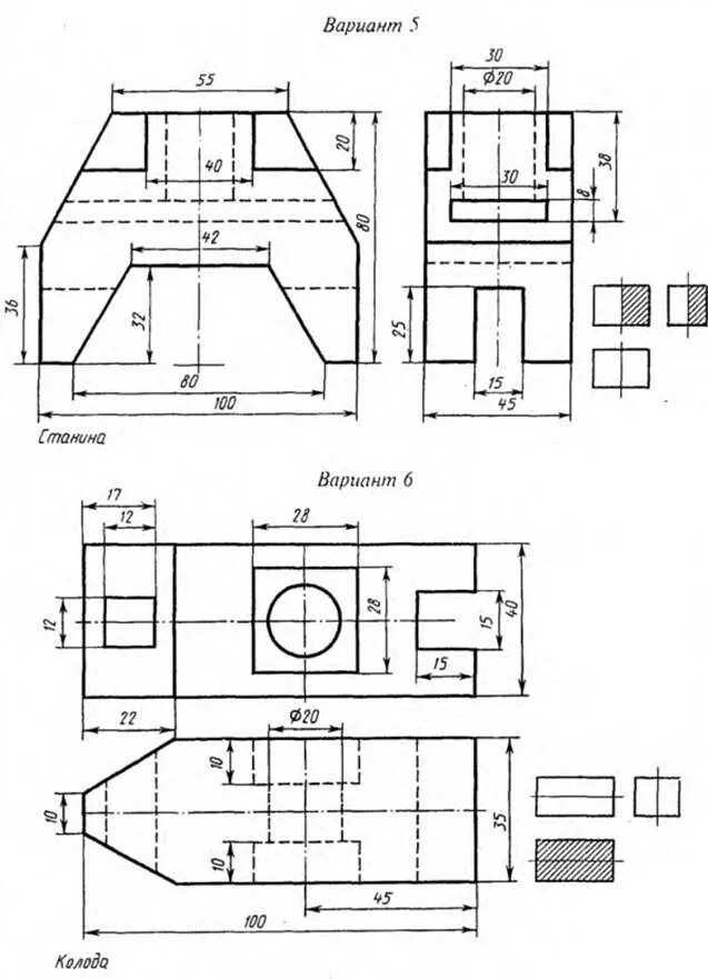
Боголюбов черчение задание