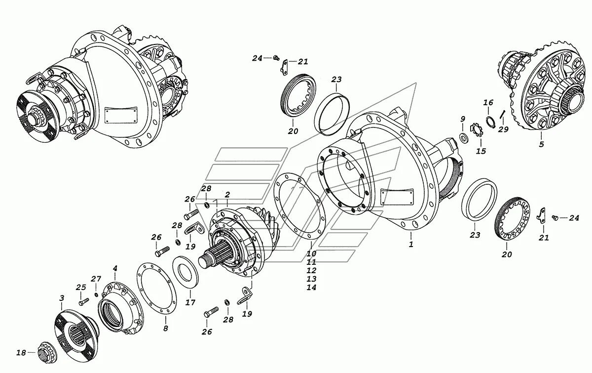
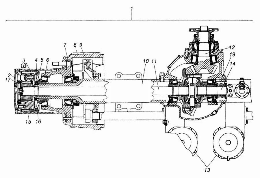
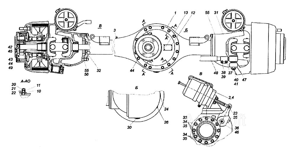
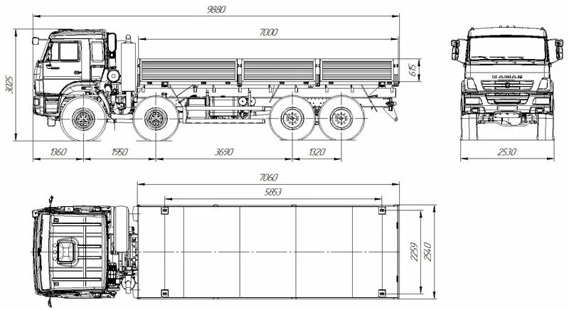
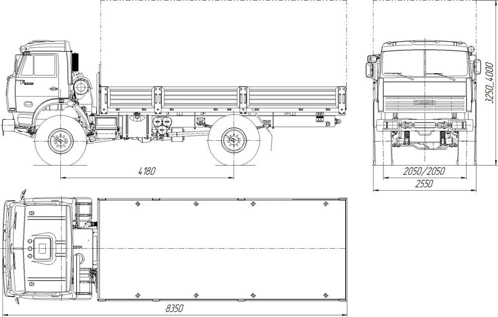
Бортовая камаз схема