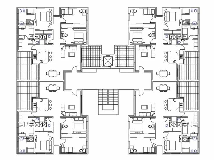
Building layout