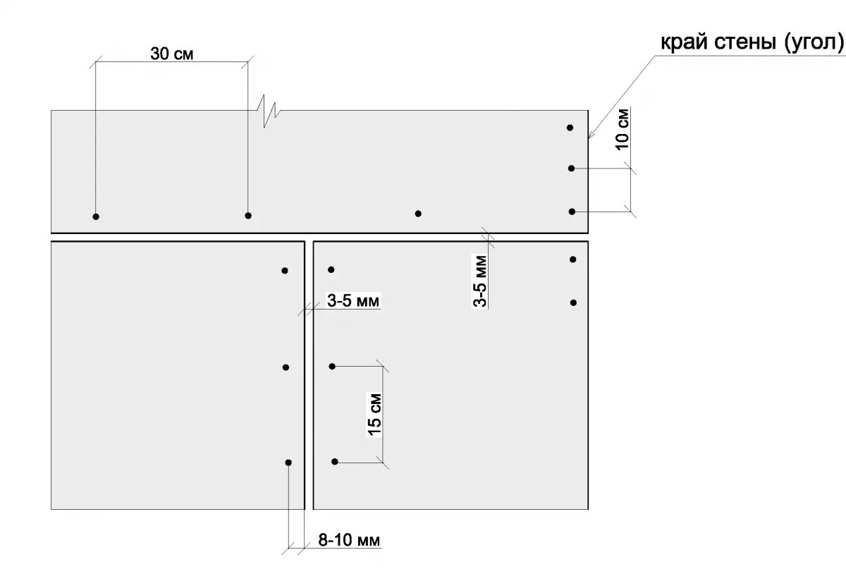
Чем крепить осб