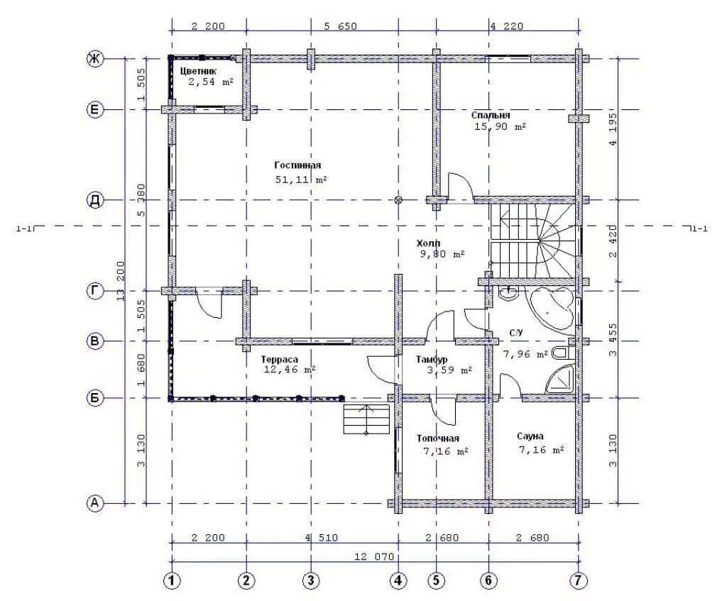
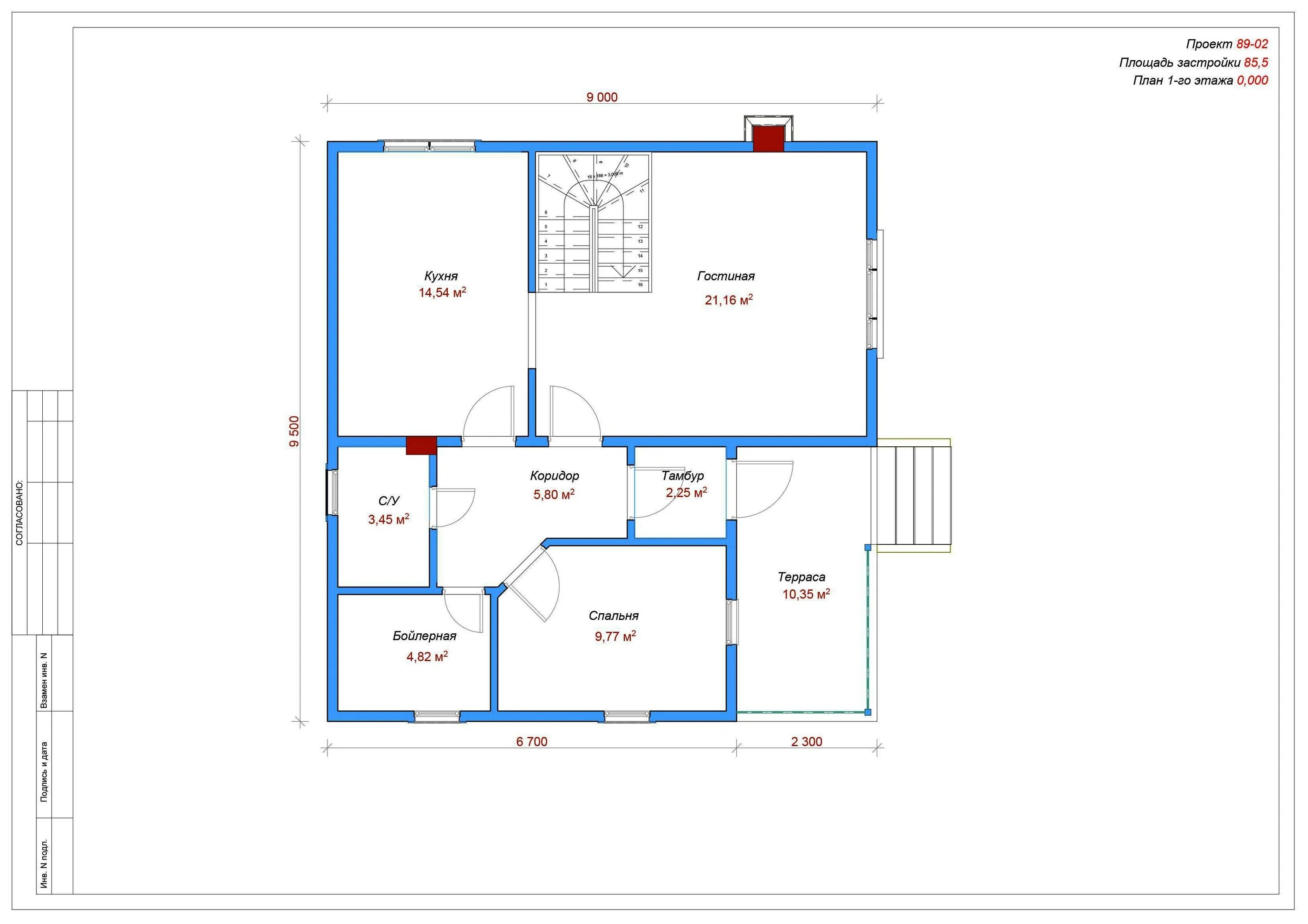
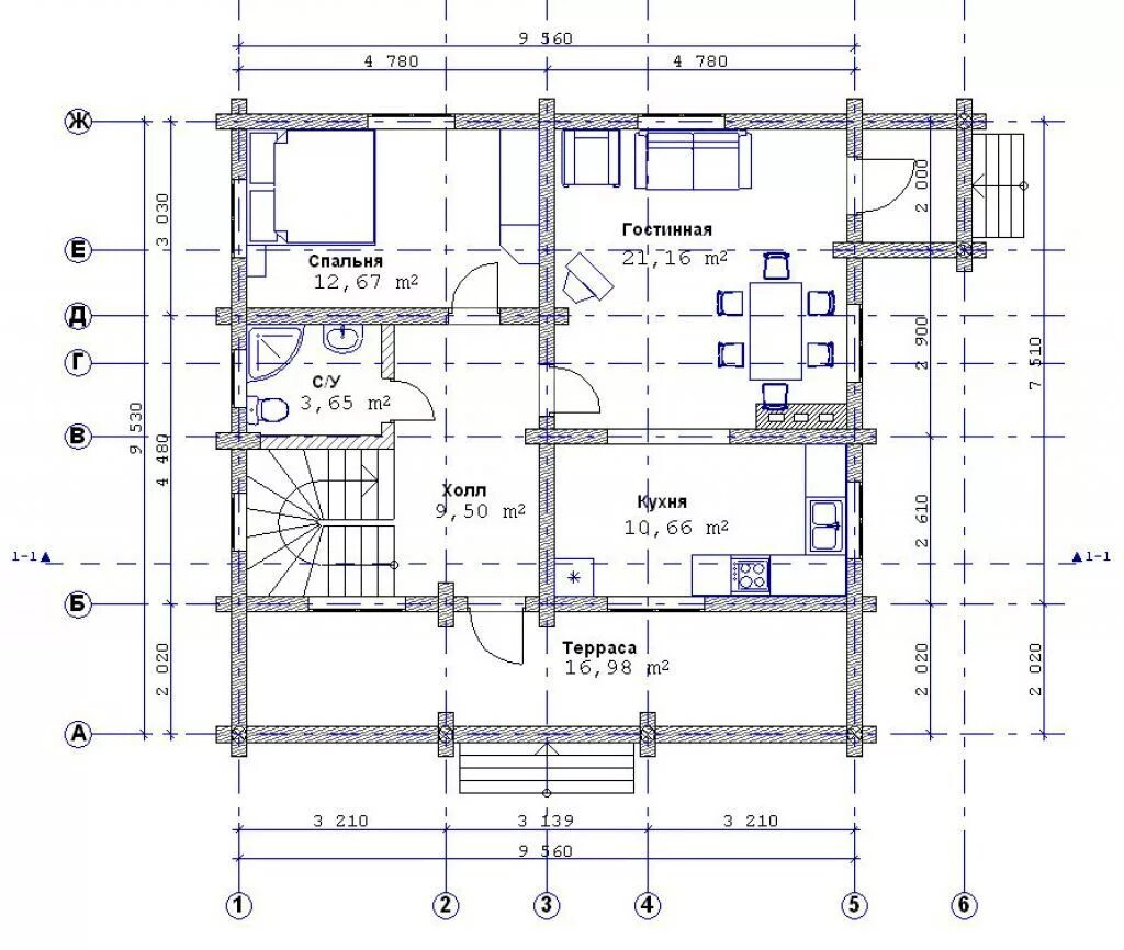
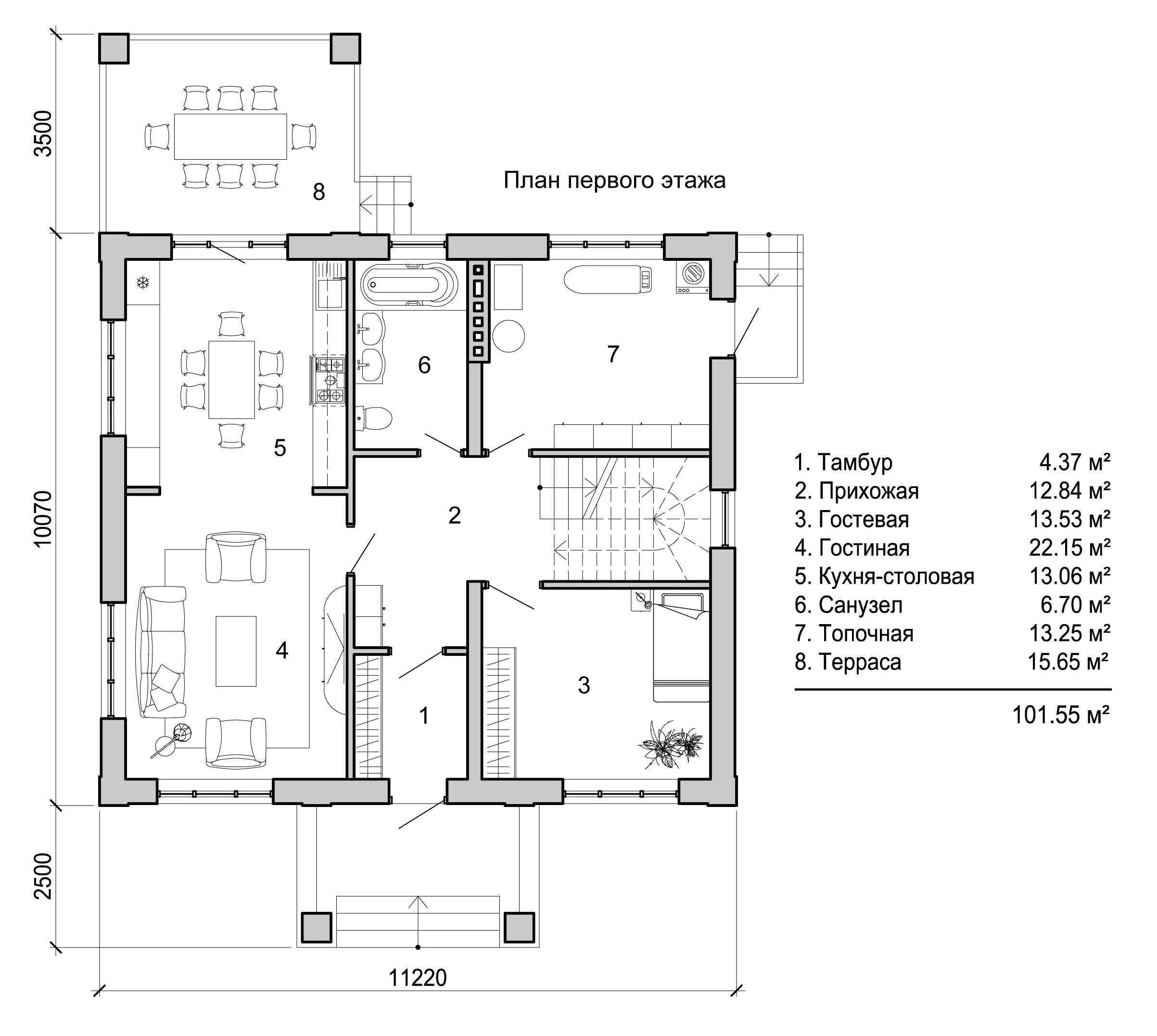
Чертеж 1 этаж