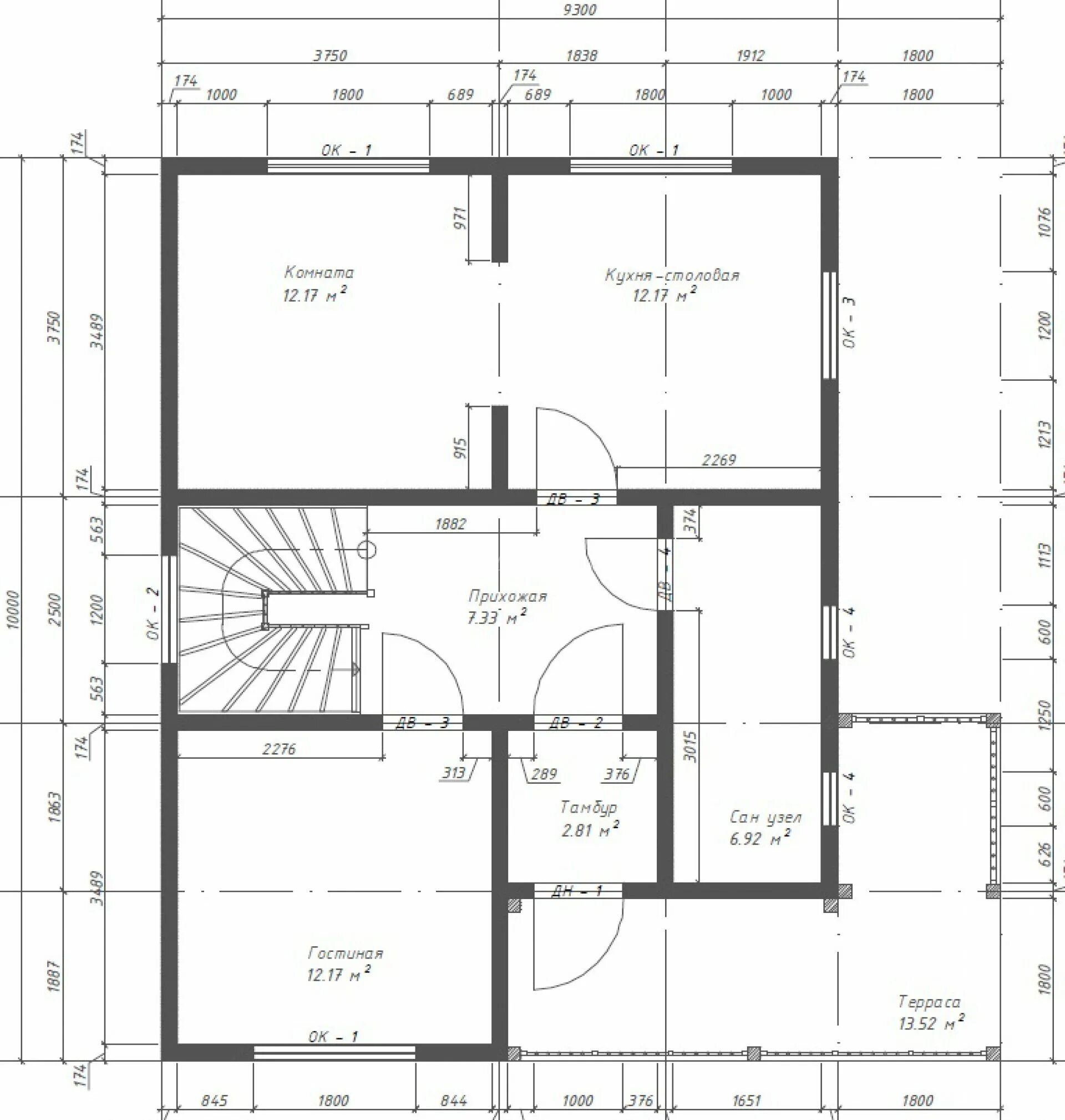
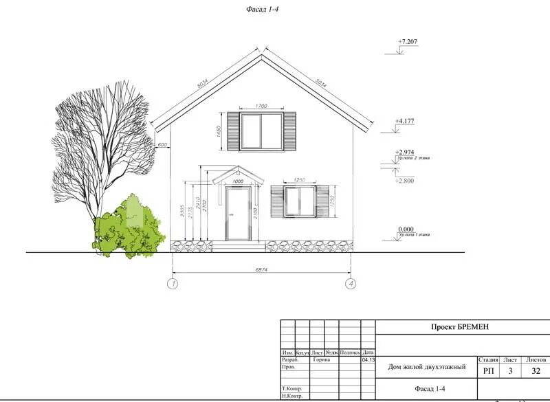
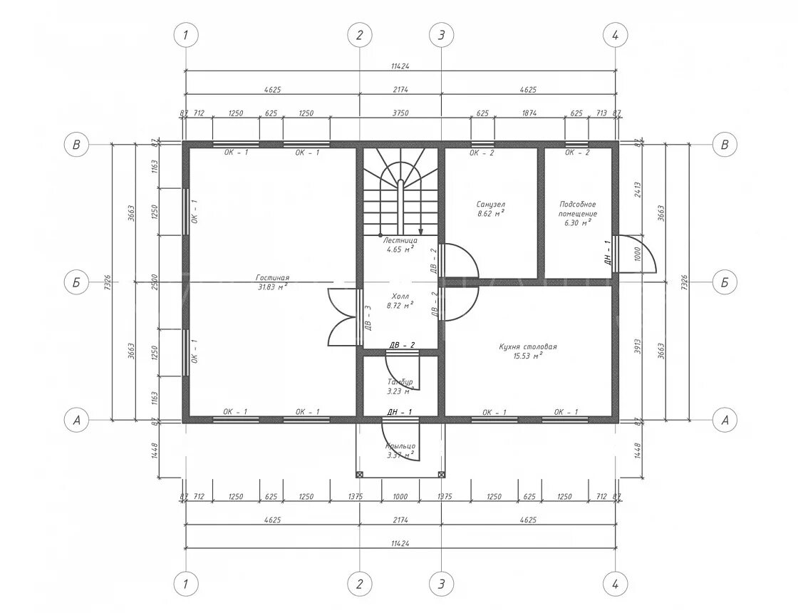
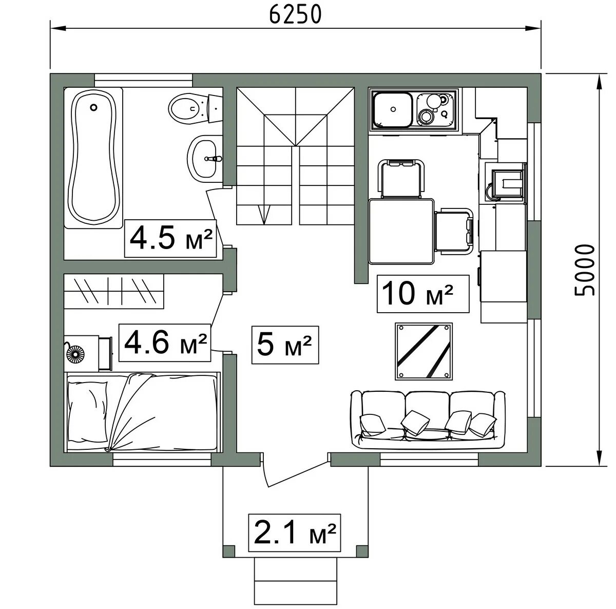
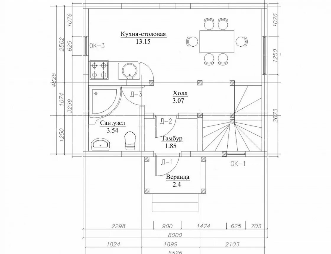
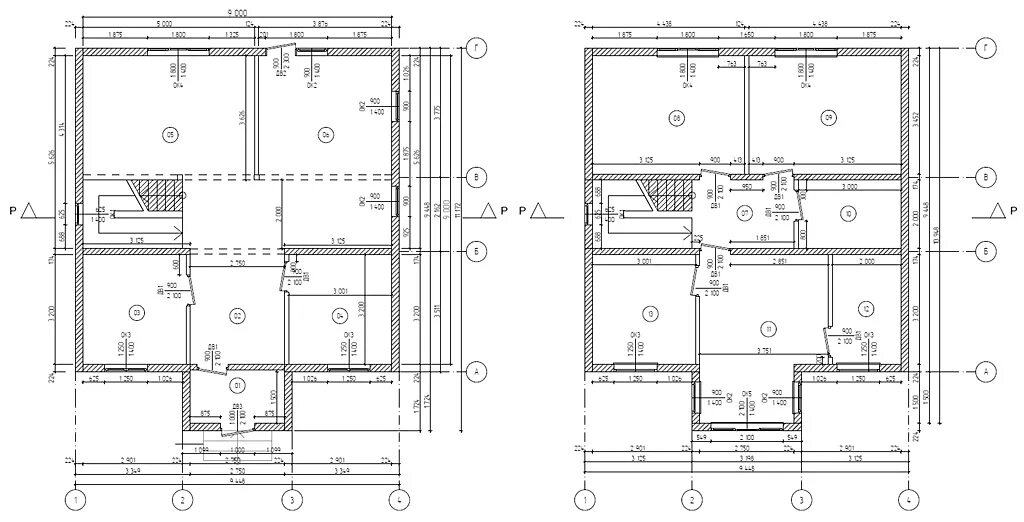
Чертеж домов из сип