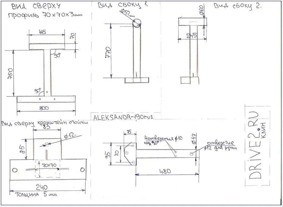
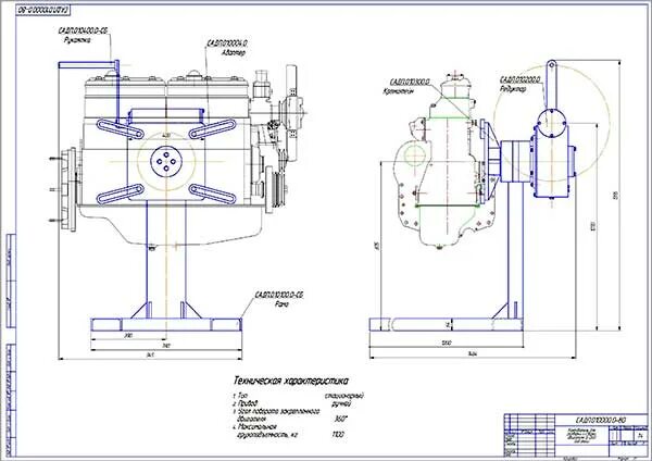
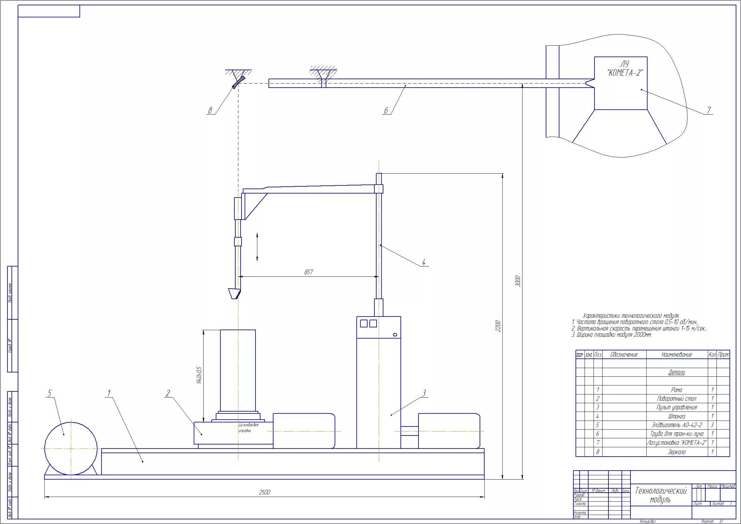
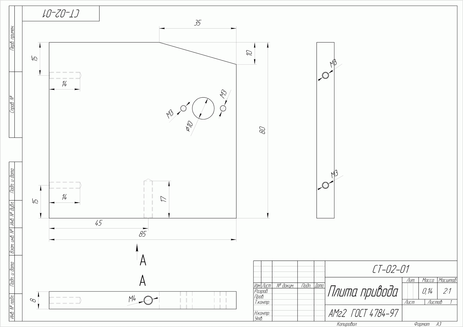
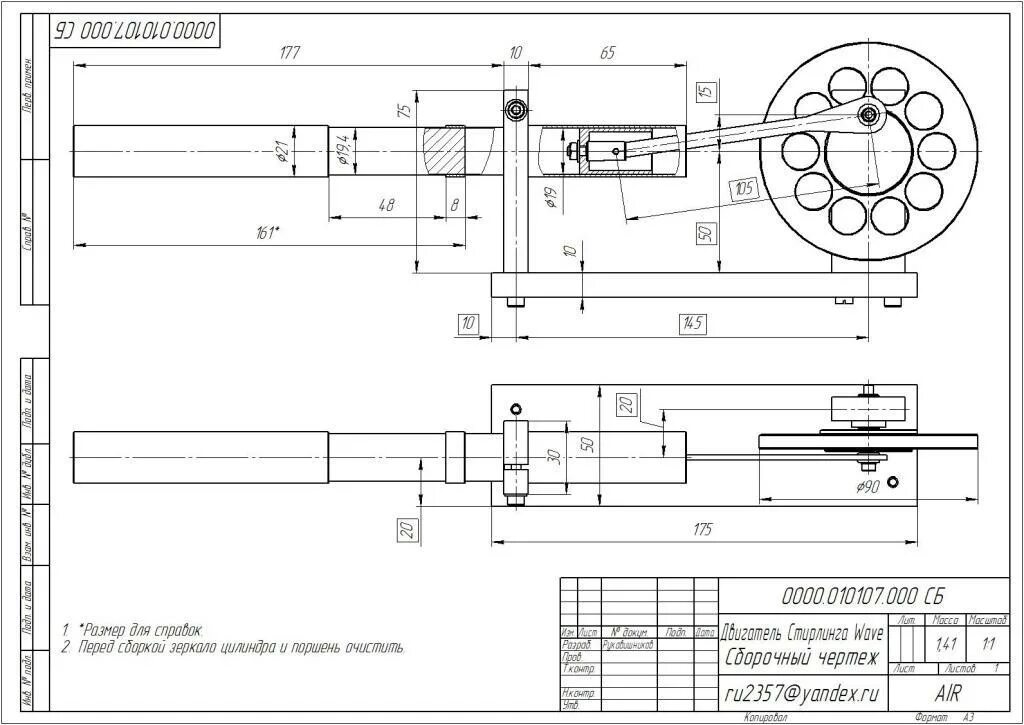
Чертеж двигателя своими руками