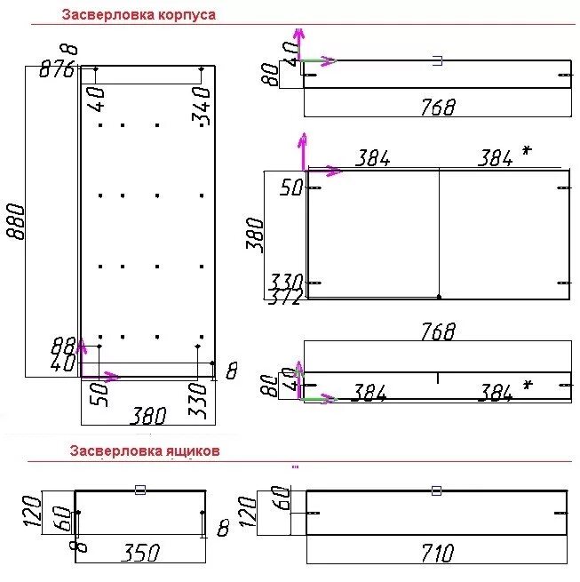
Чертеж нард