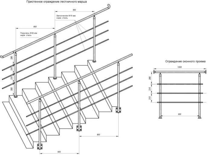
Чертеж ограждения лестницы