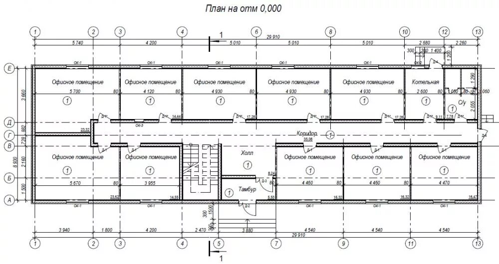
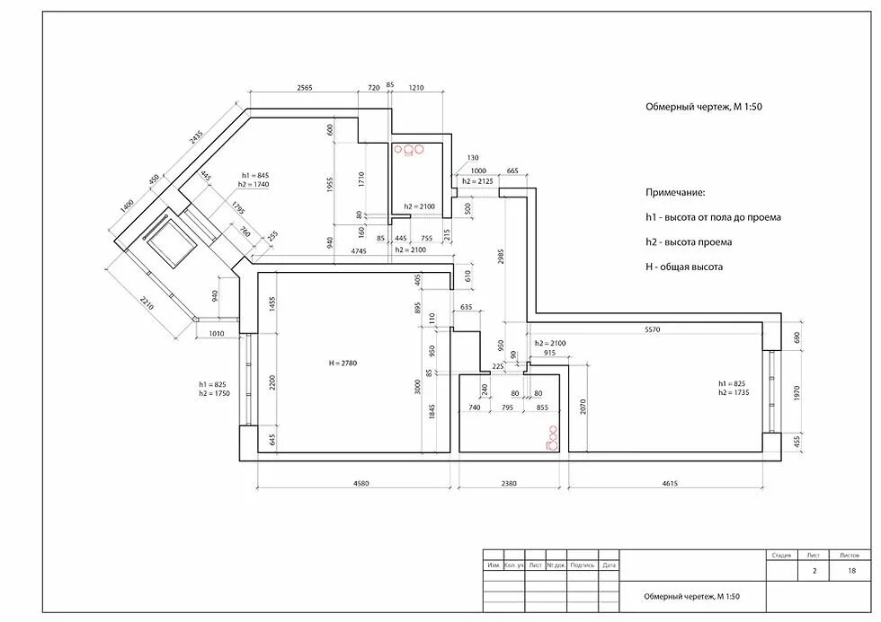
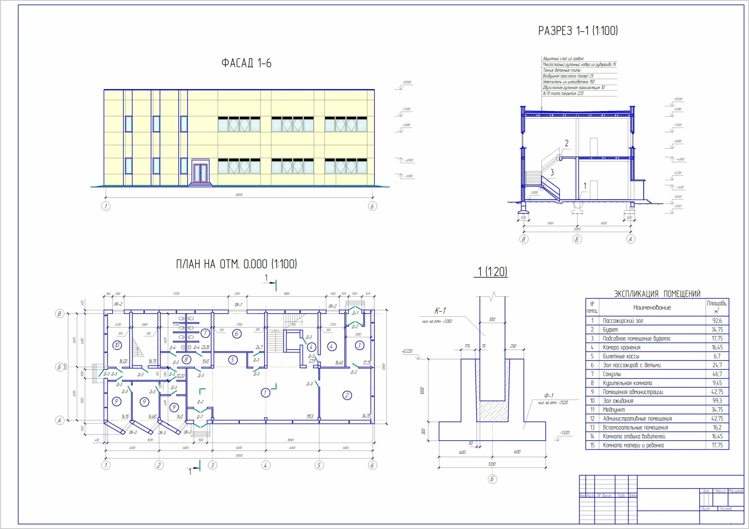
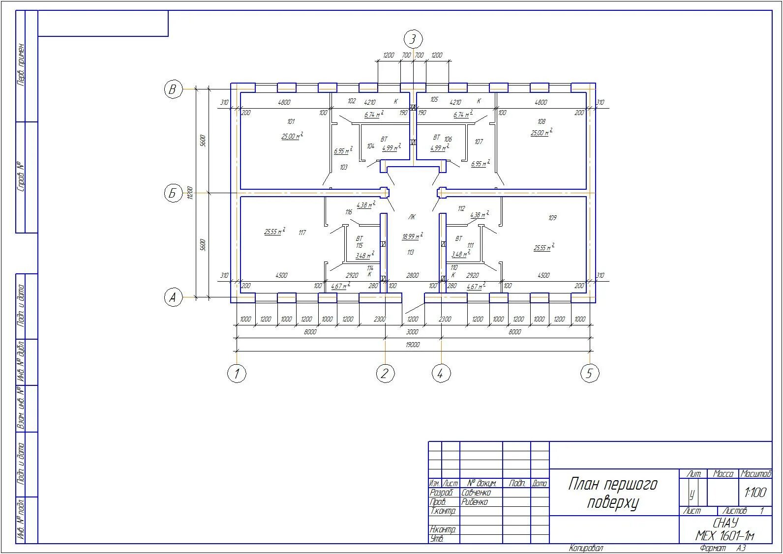
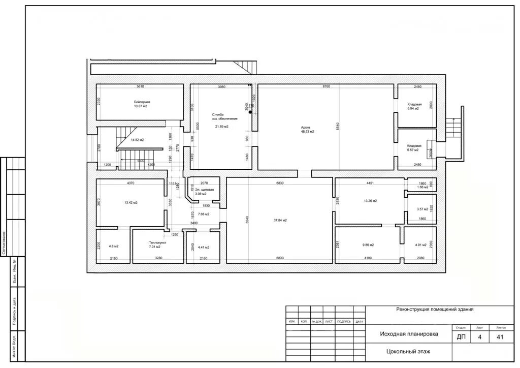
Чертеж здании помещении