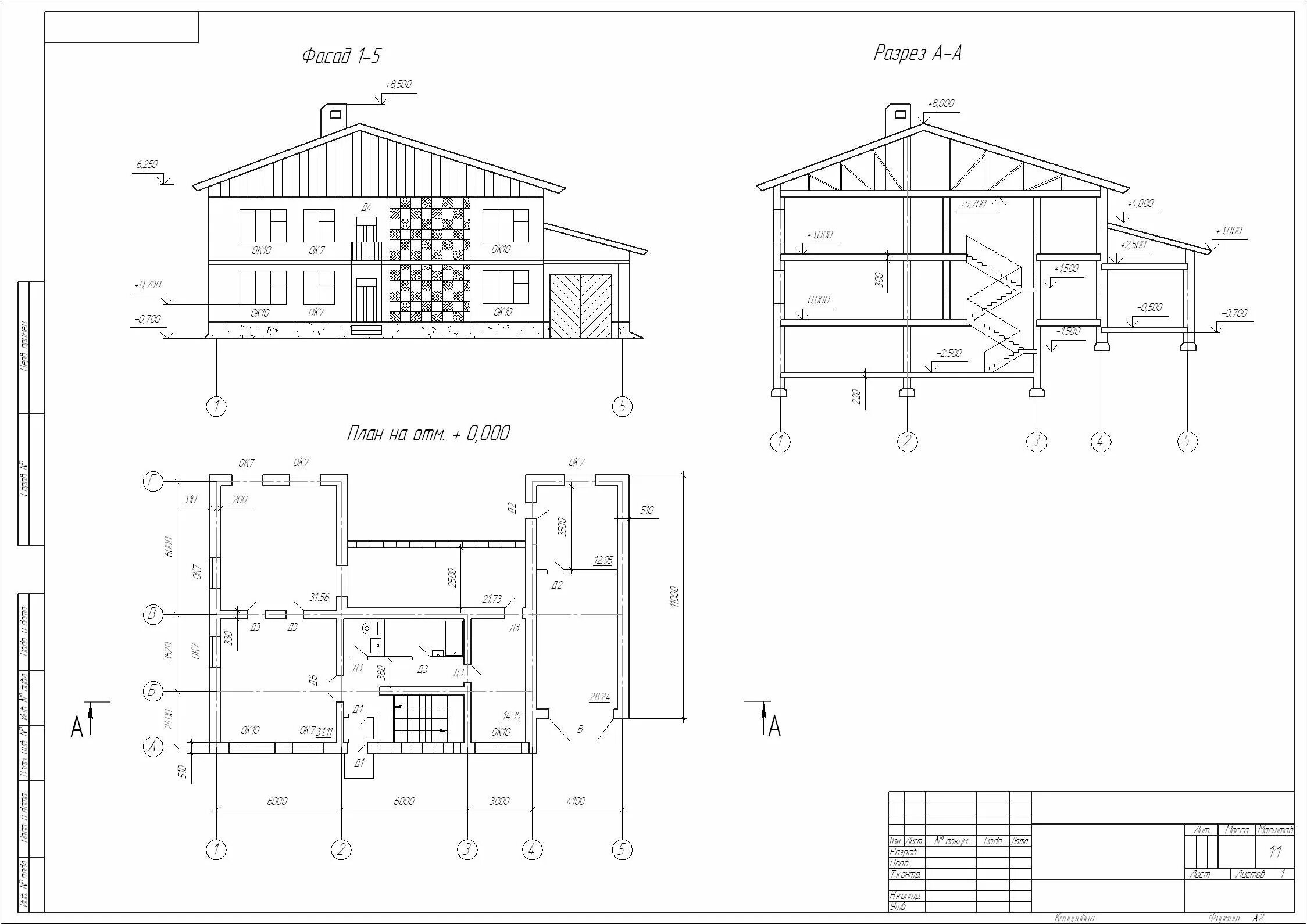
Чертежи планов фасадов разрезов зданий