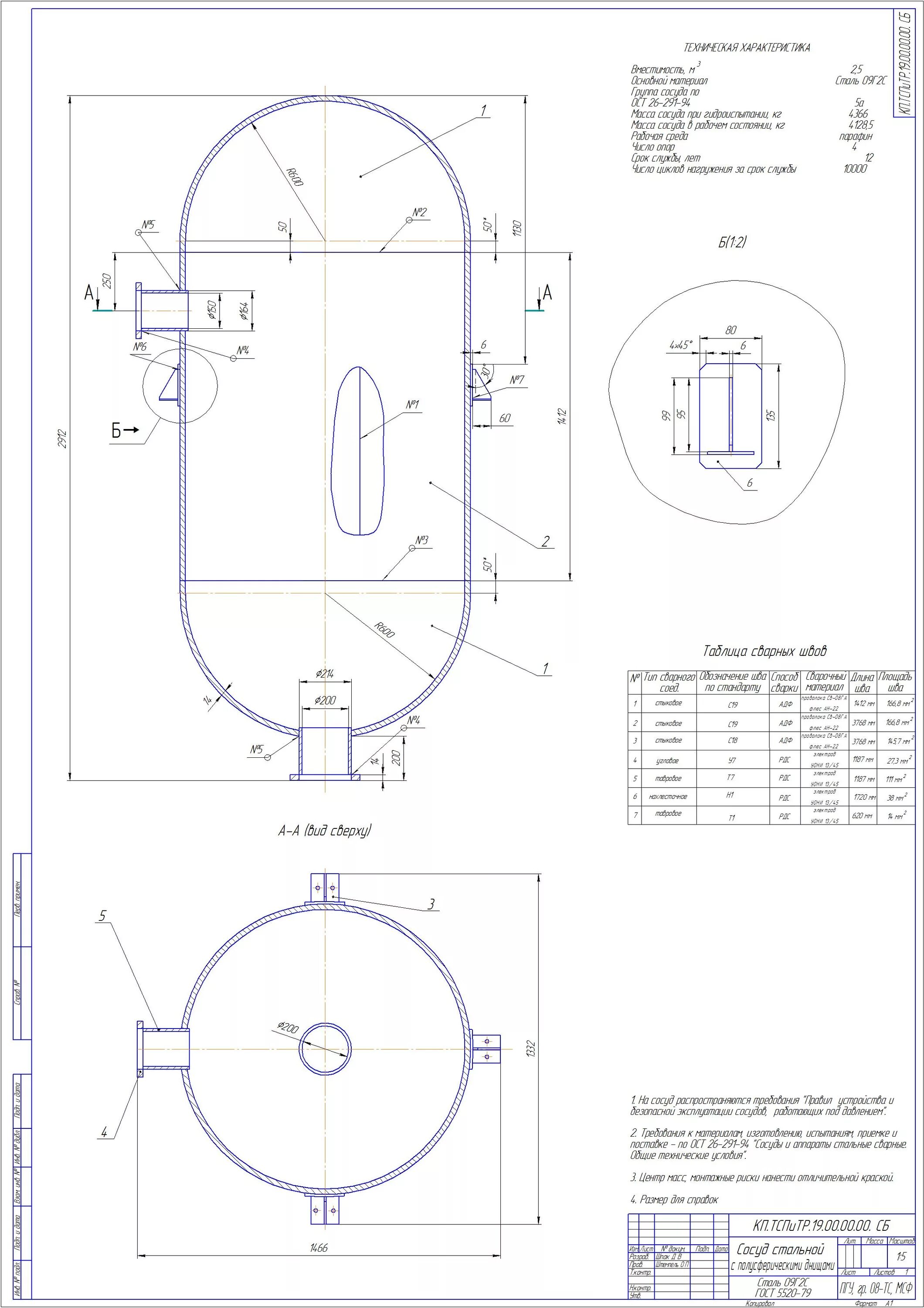
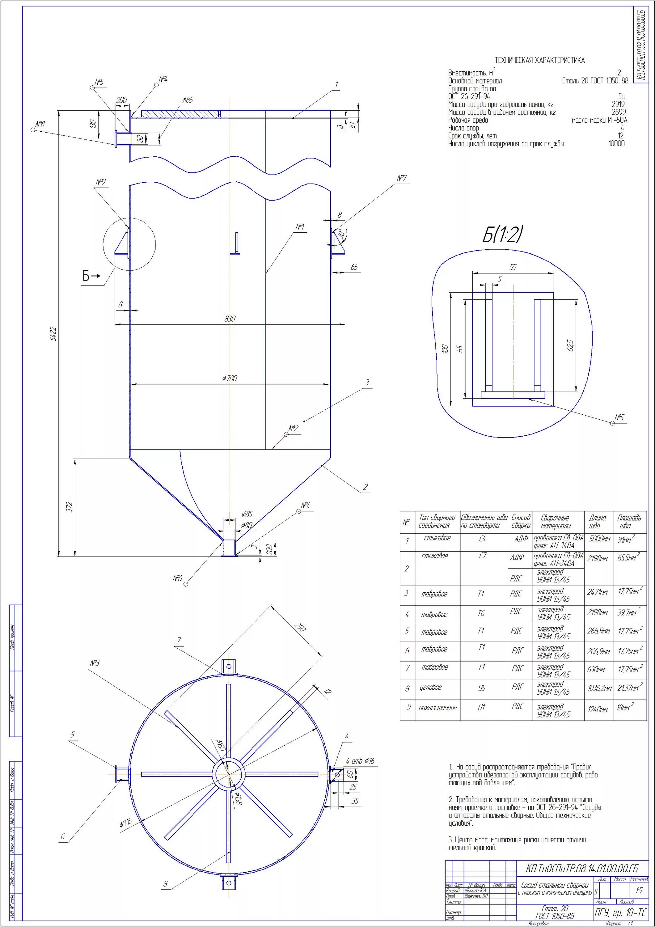
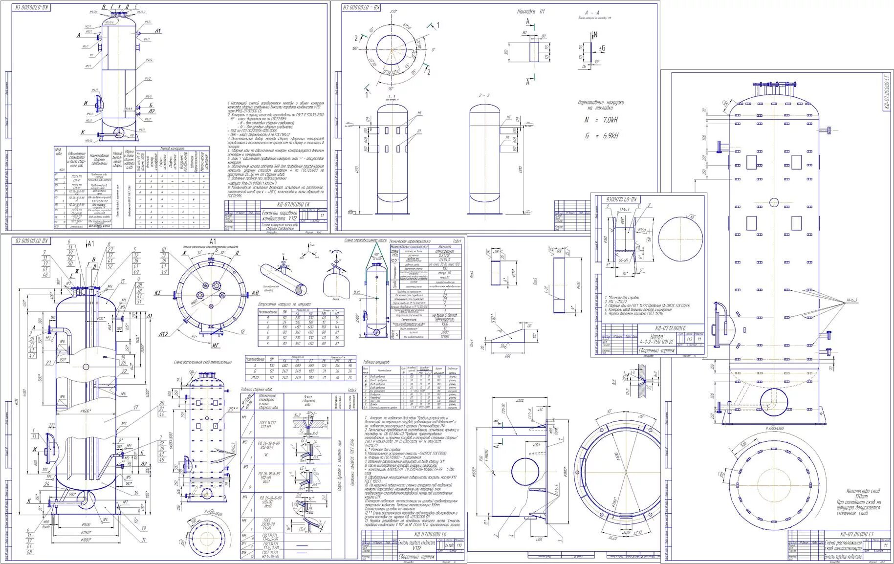
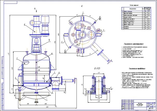
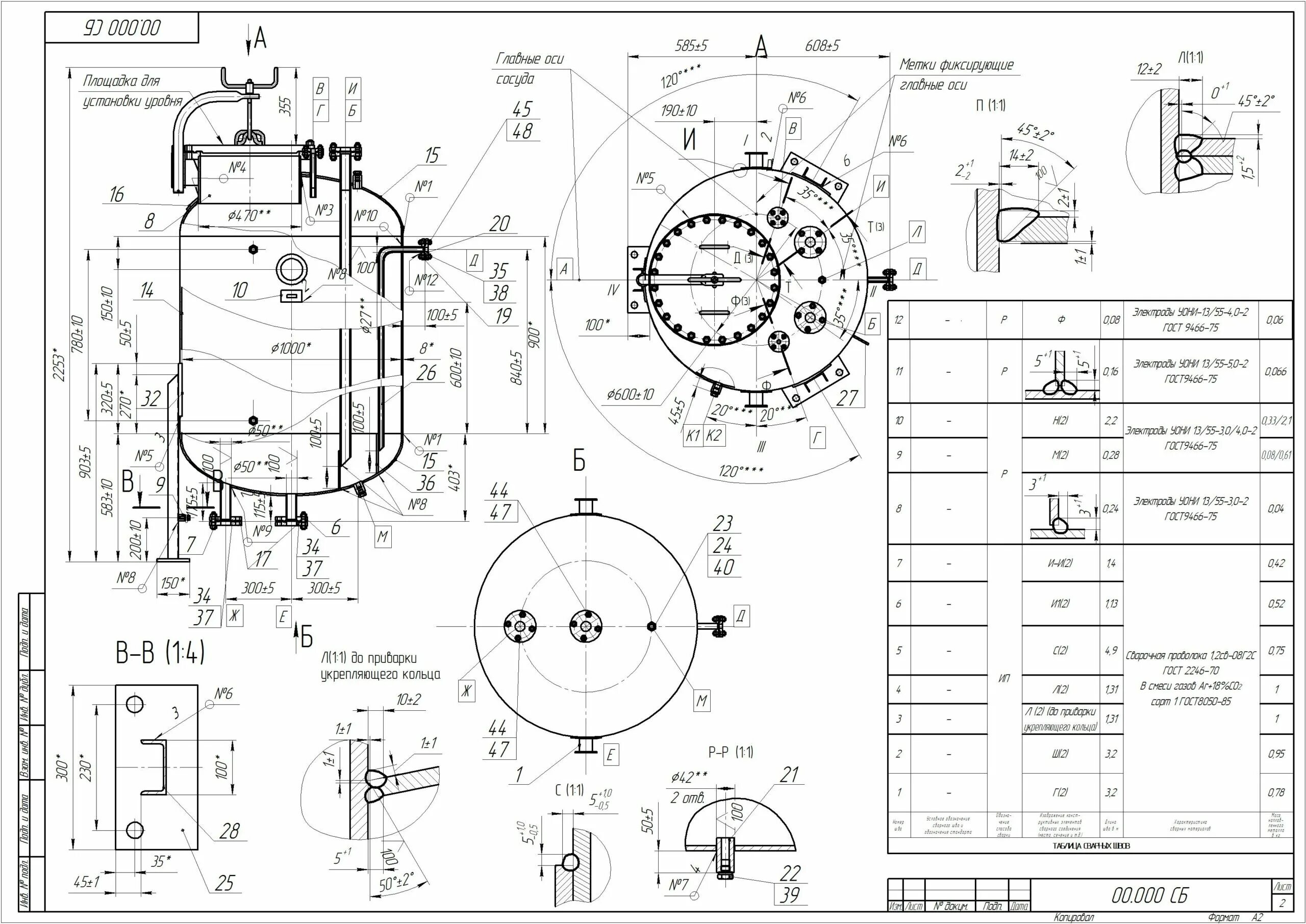
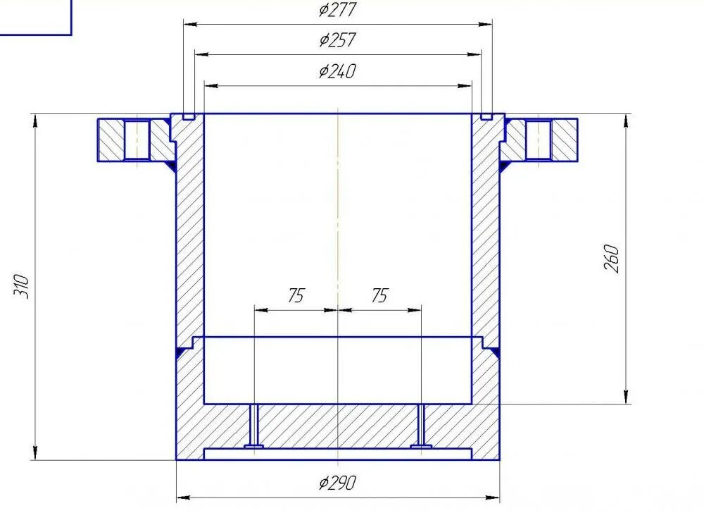
Чертежи под давлением