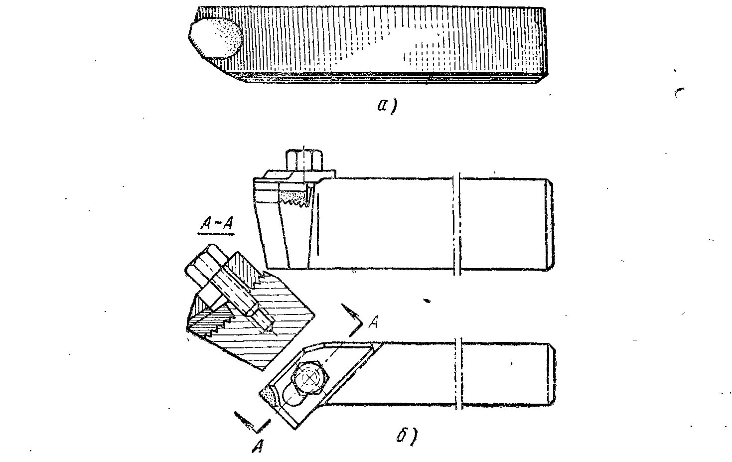
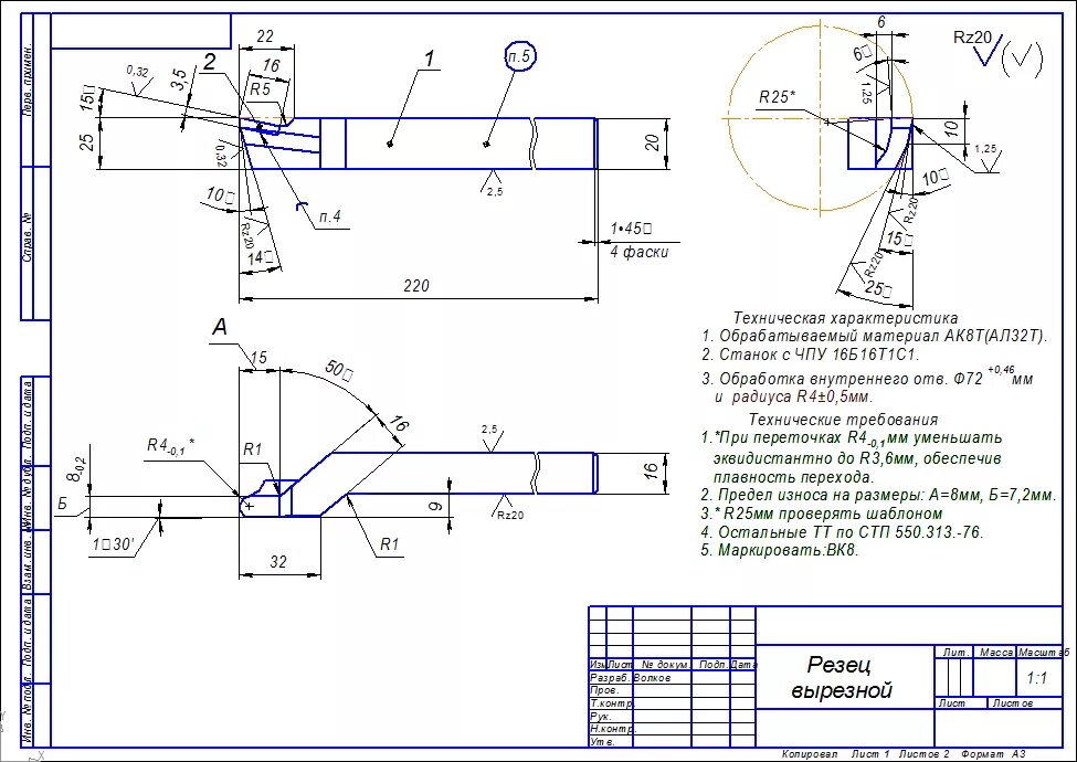
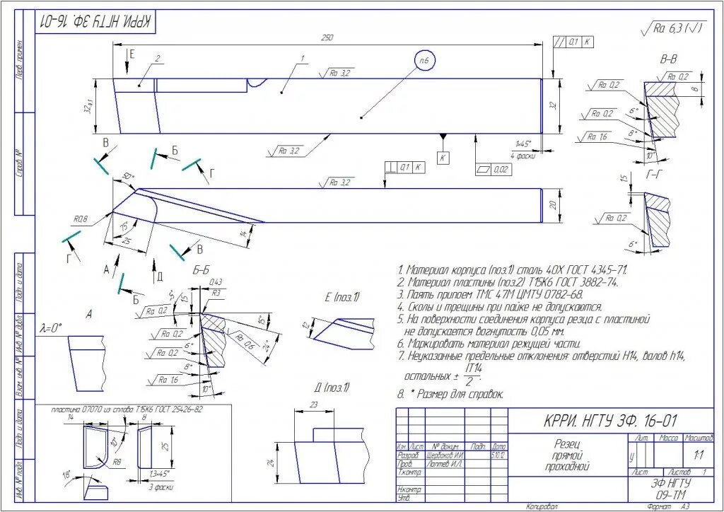
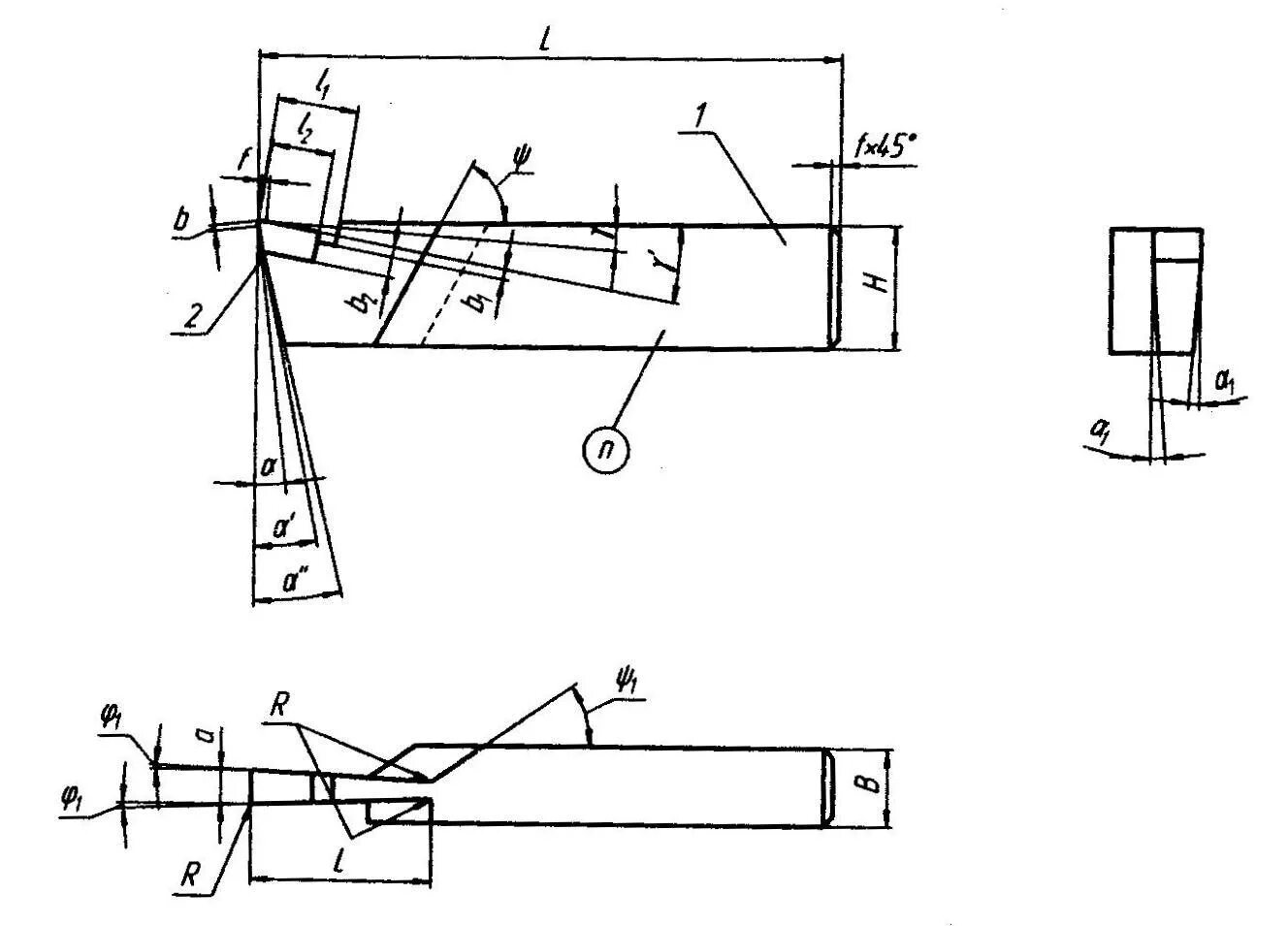
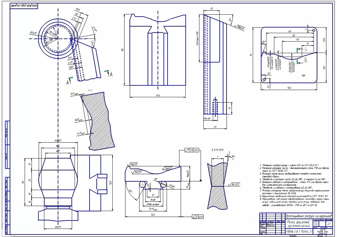
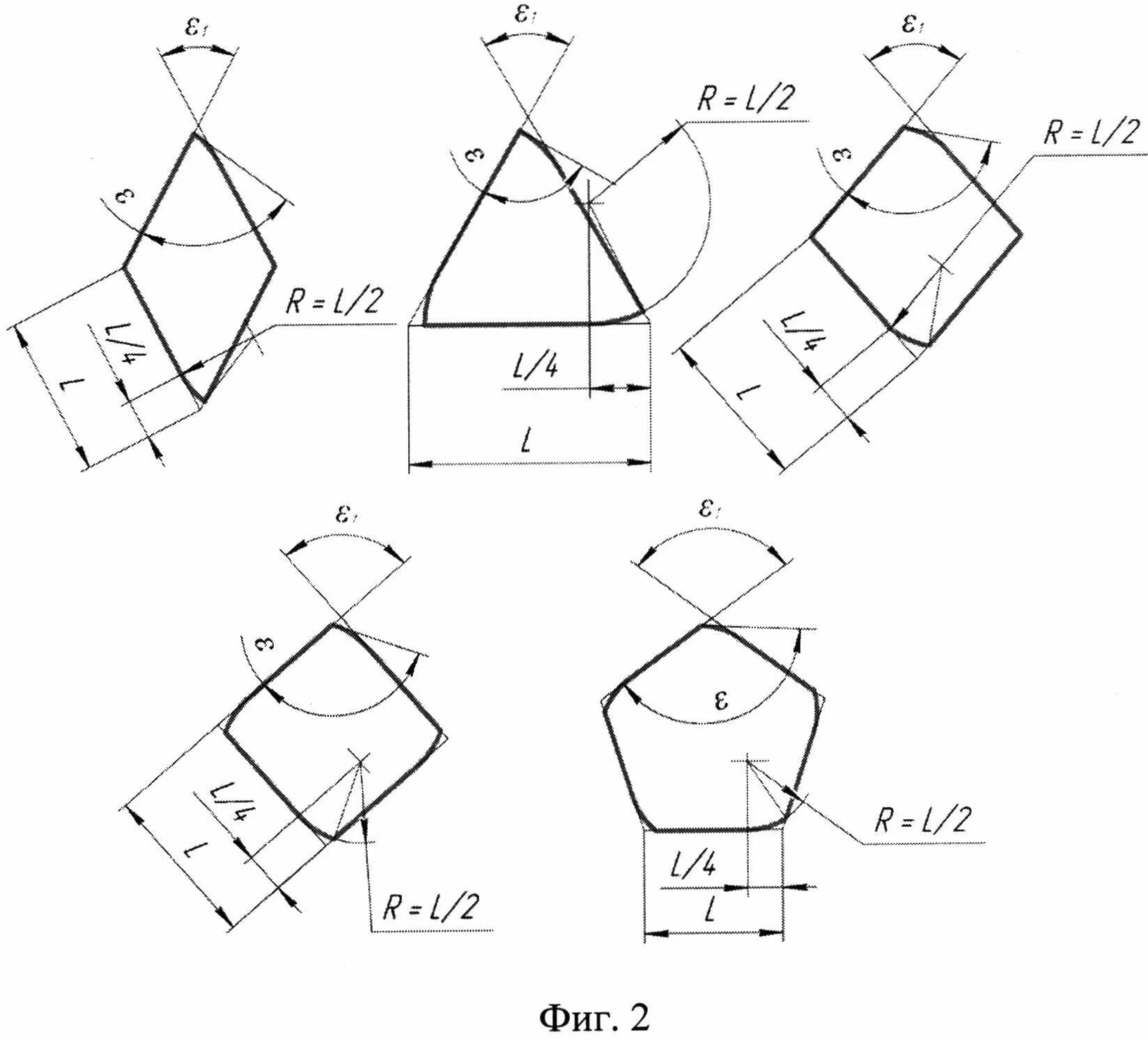
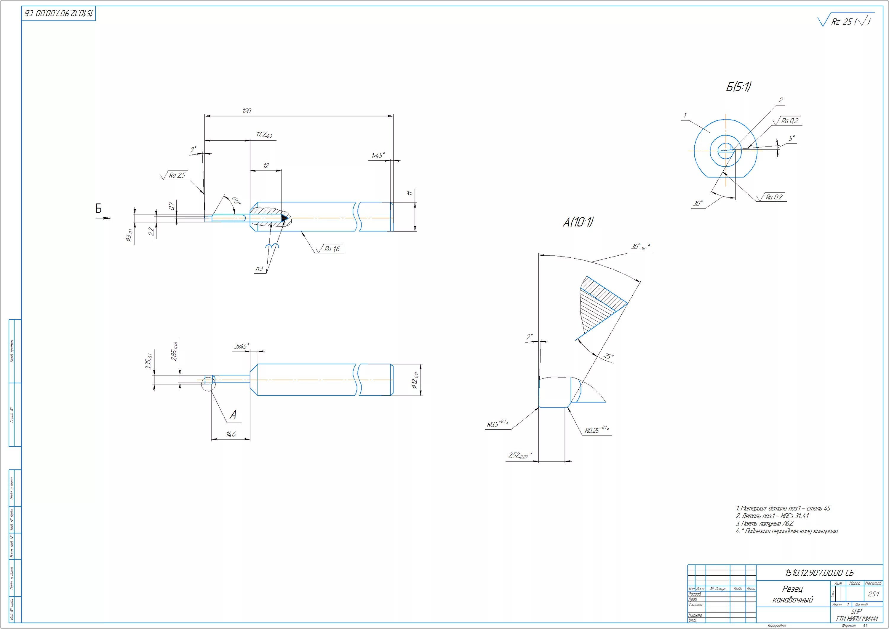
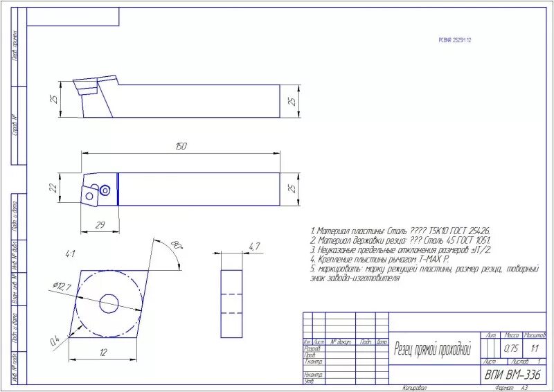
Чертежи резцов