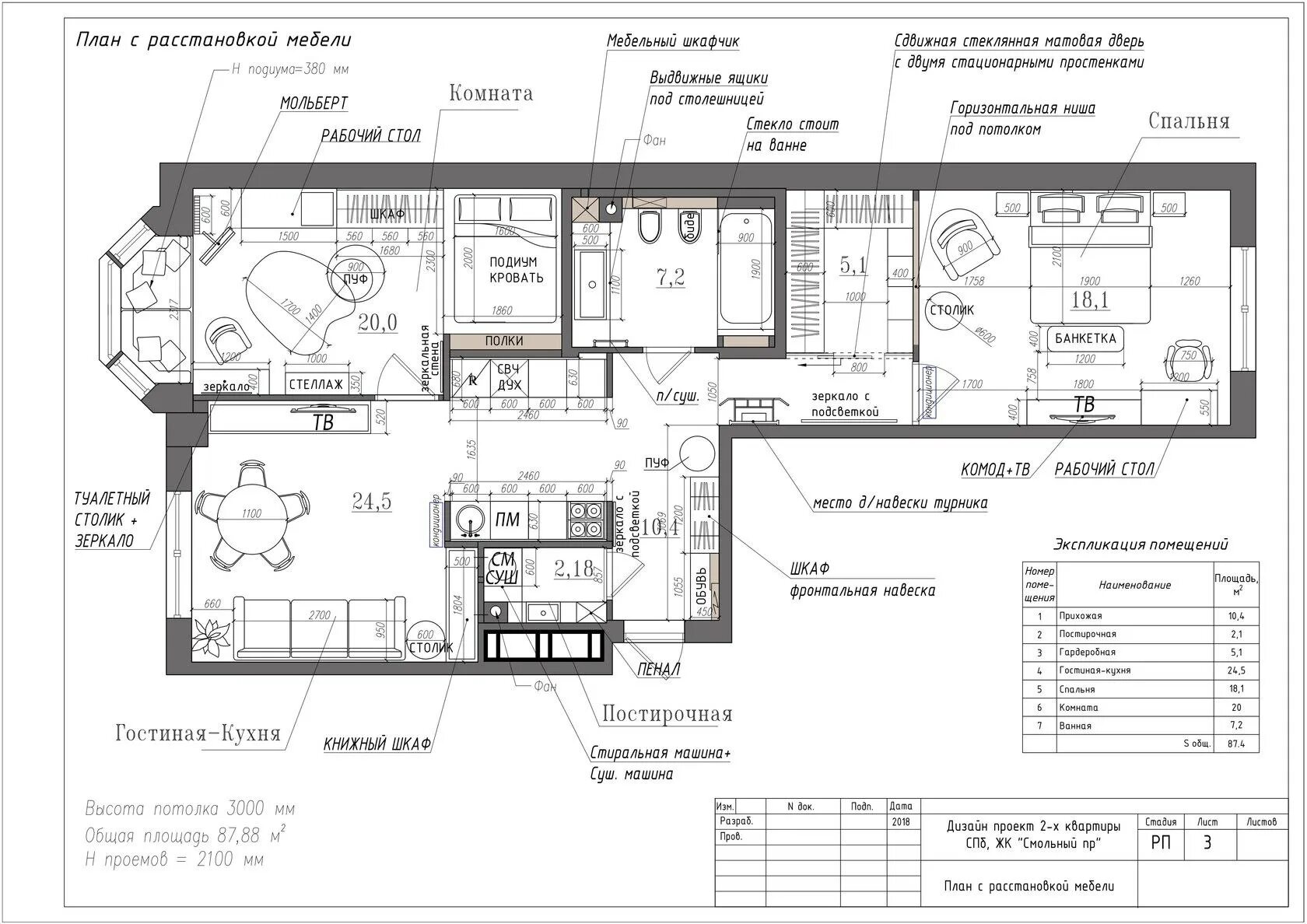
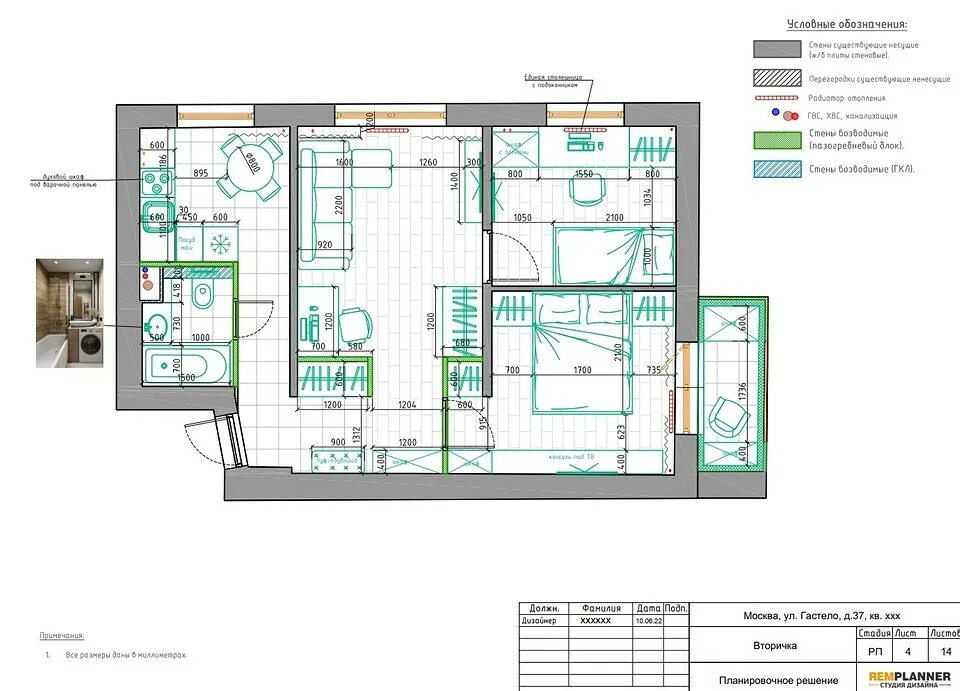
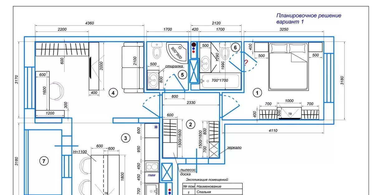
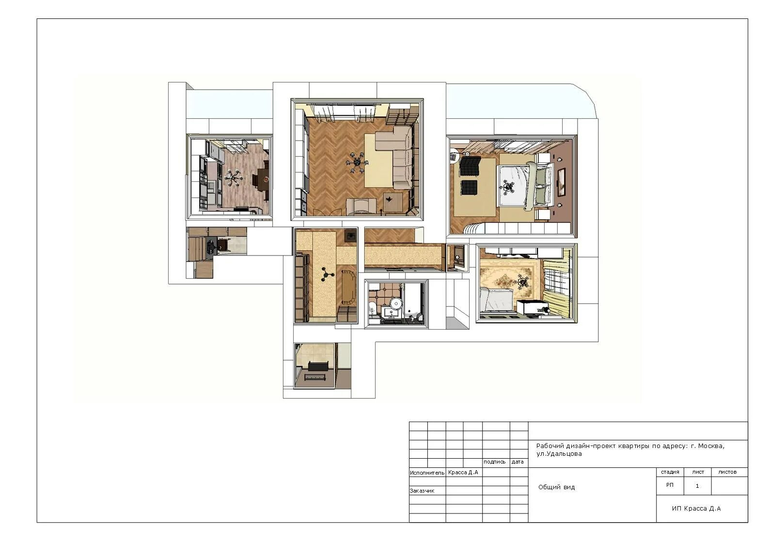
Что такое проект квартиры