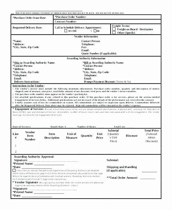
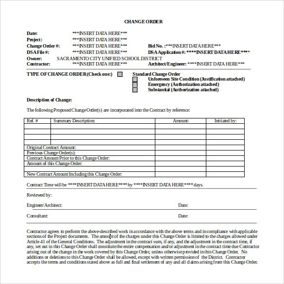
Contract payment order