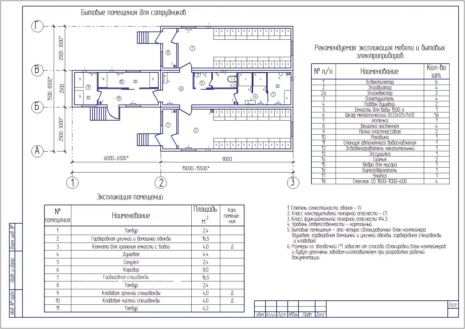
Данные помещения то есть