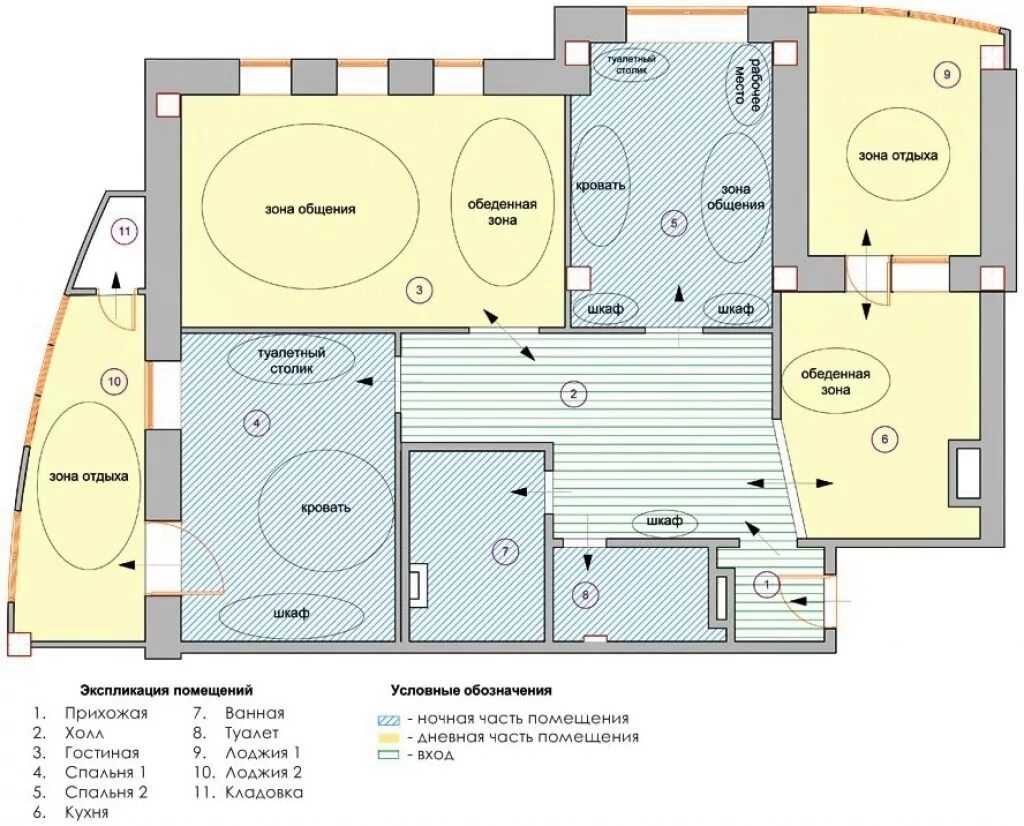
Делимый план