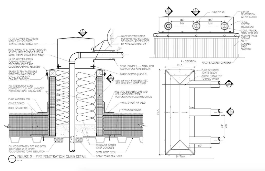
Detail lt