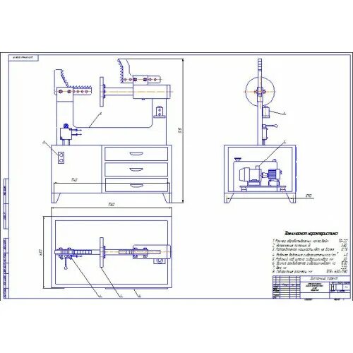
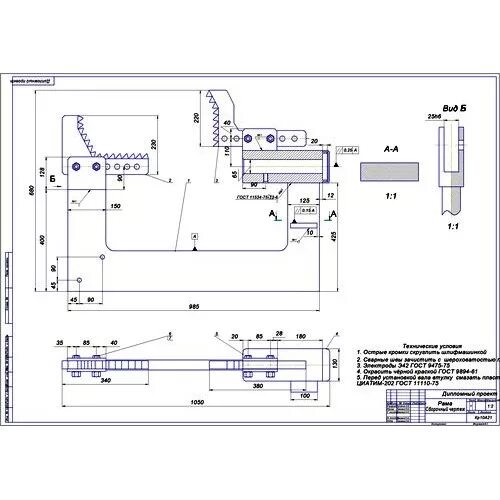
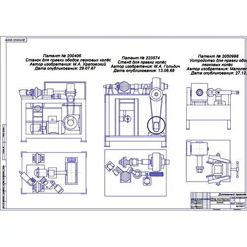
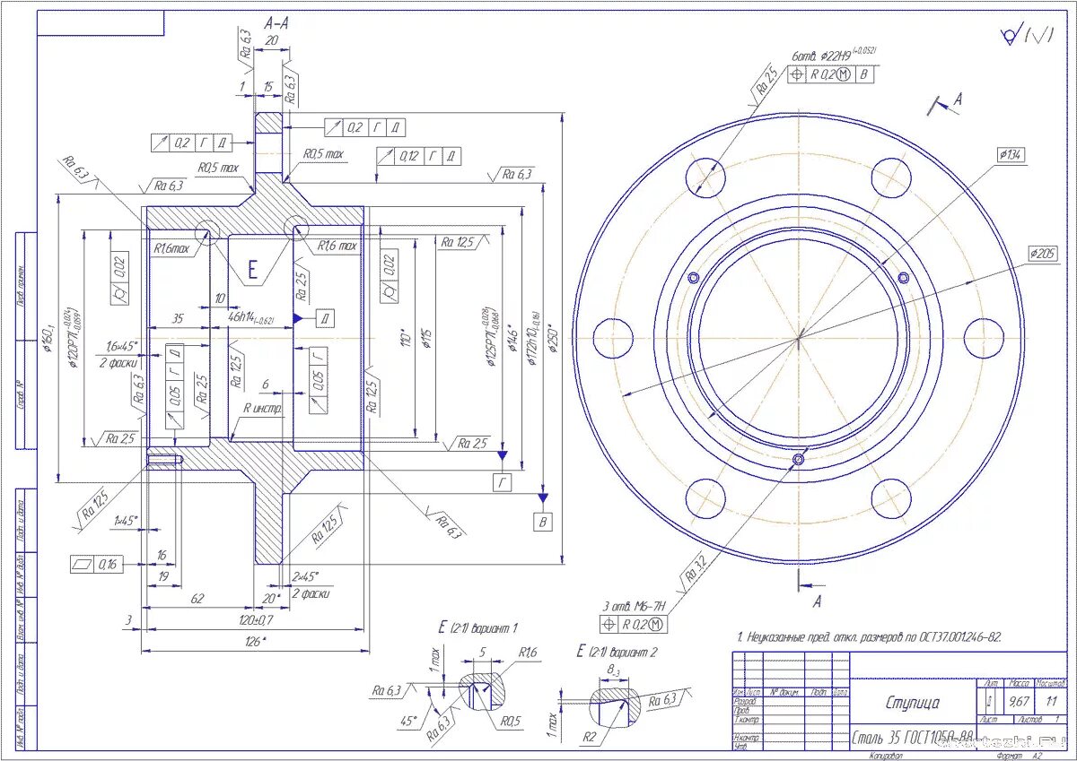
Дипломная работа диск