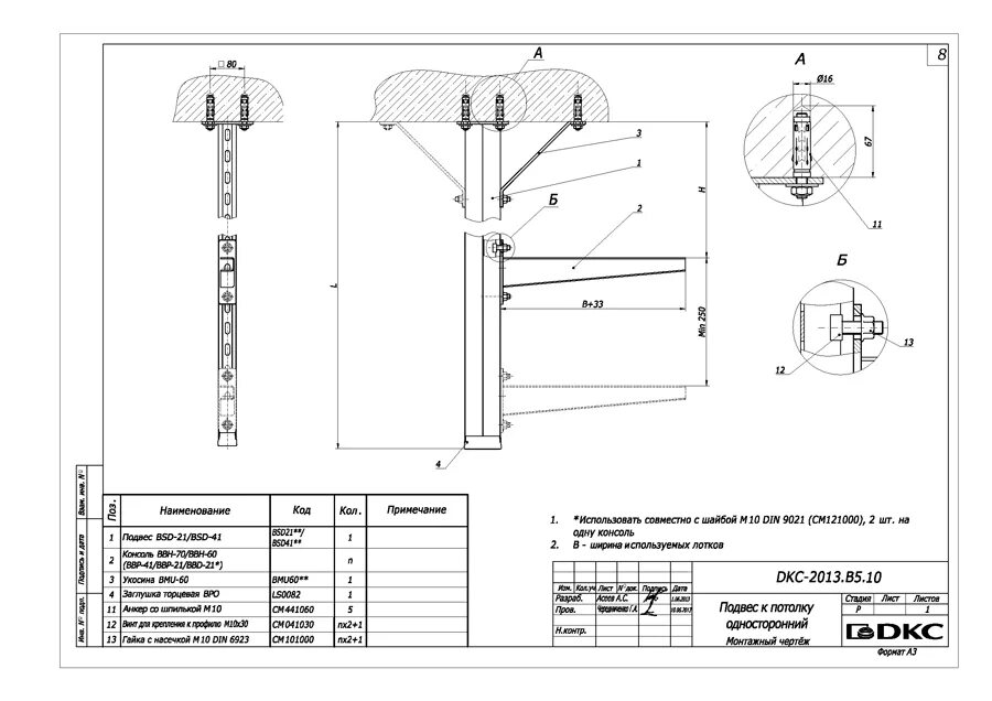
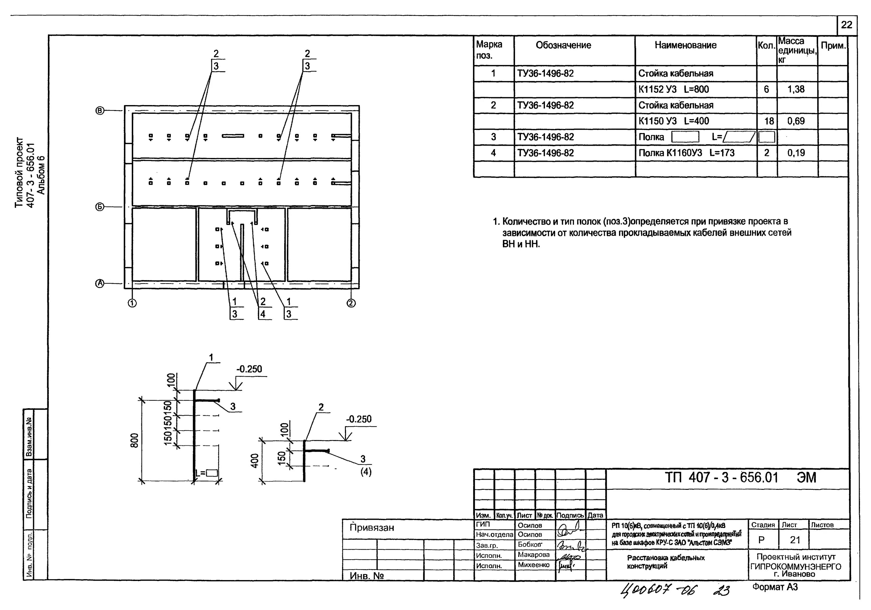
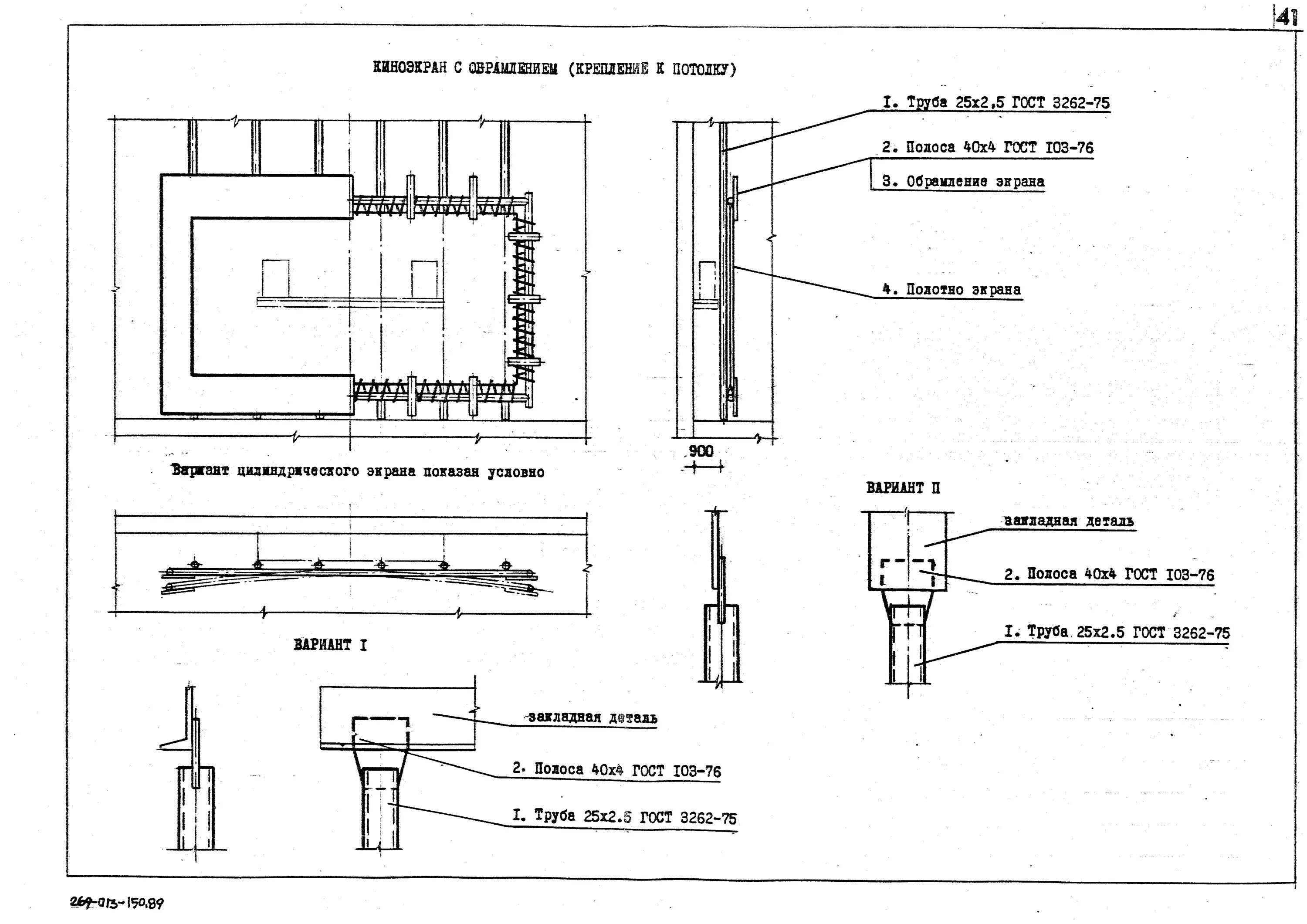
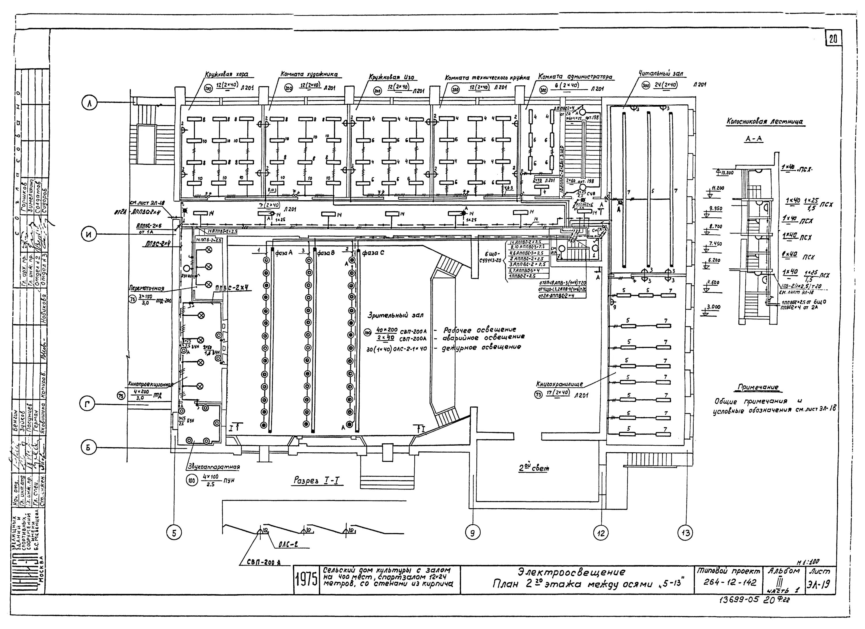
Дкс типовые альбомы