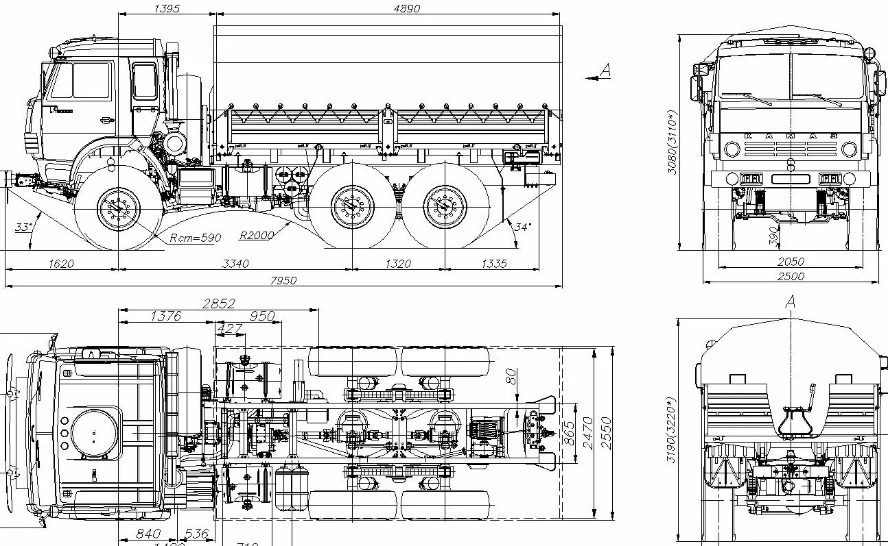
Длина камаз 5320