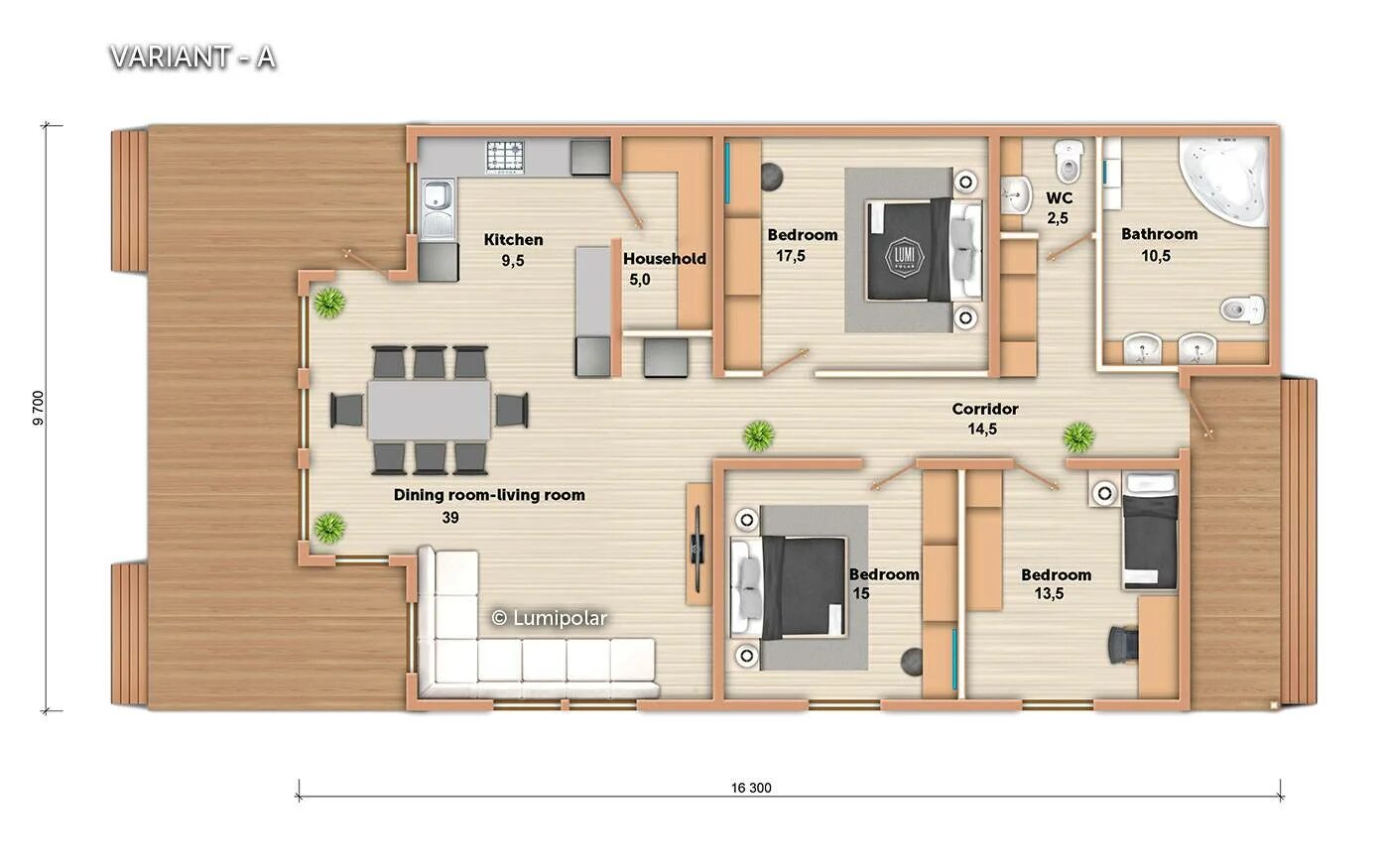
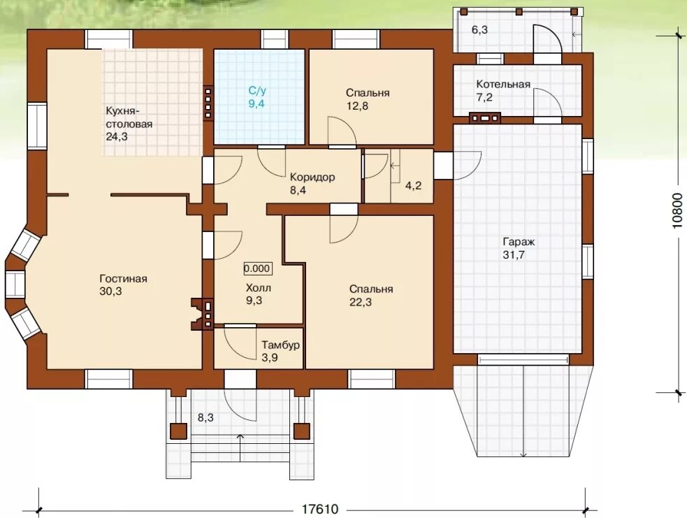
Дом 10 комнат проект