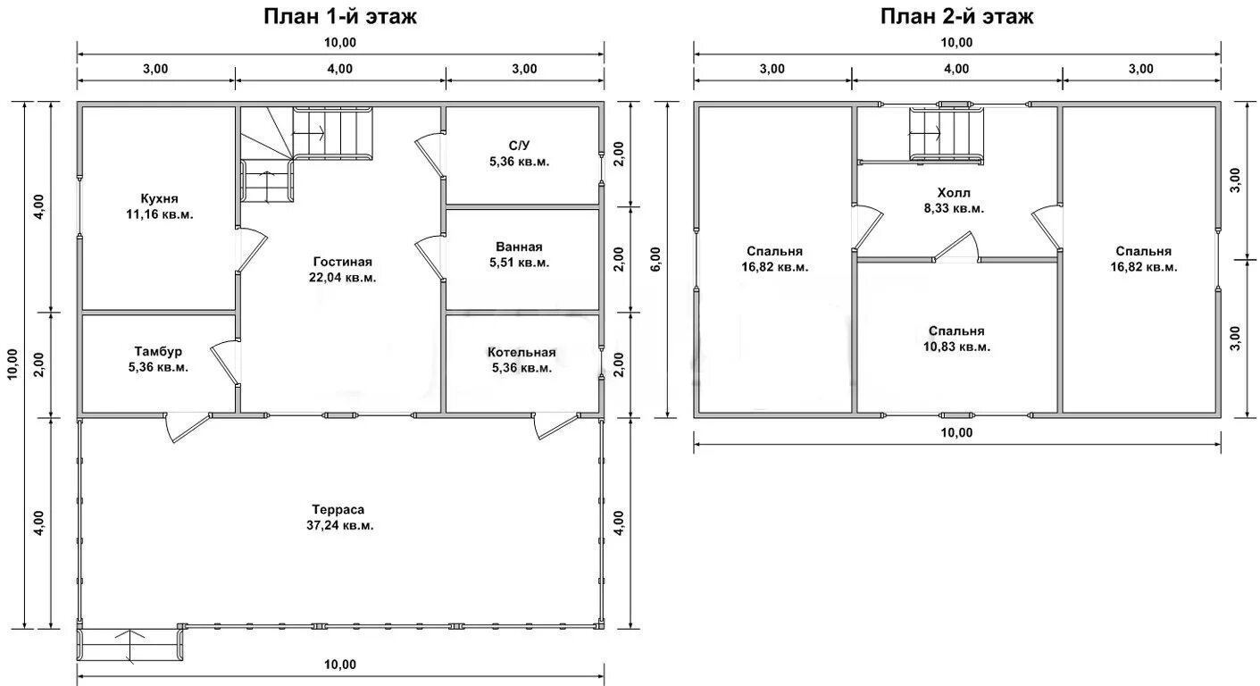
Дом 6 на 10