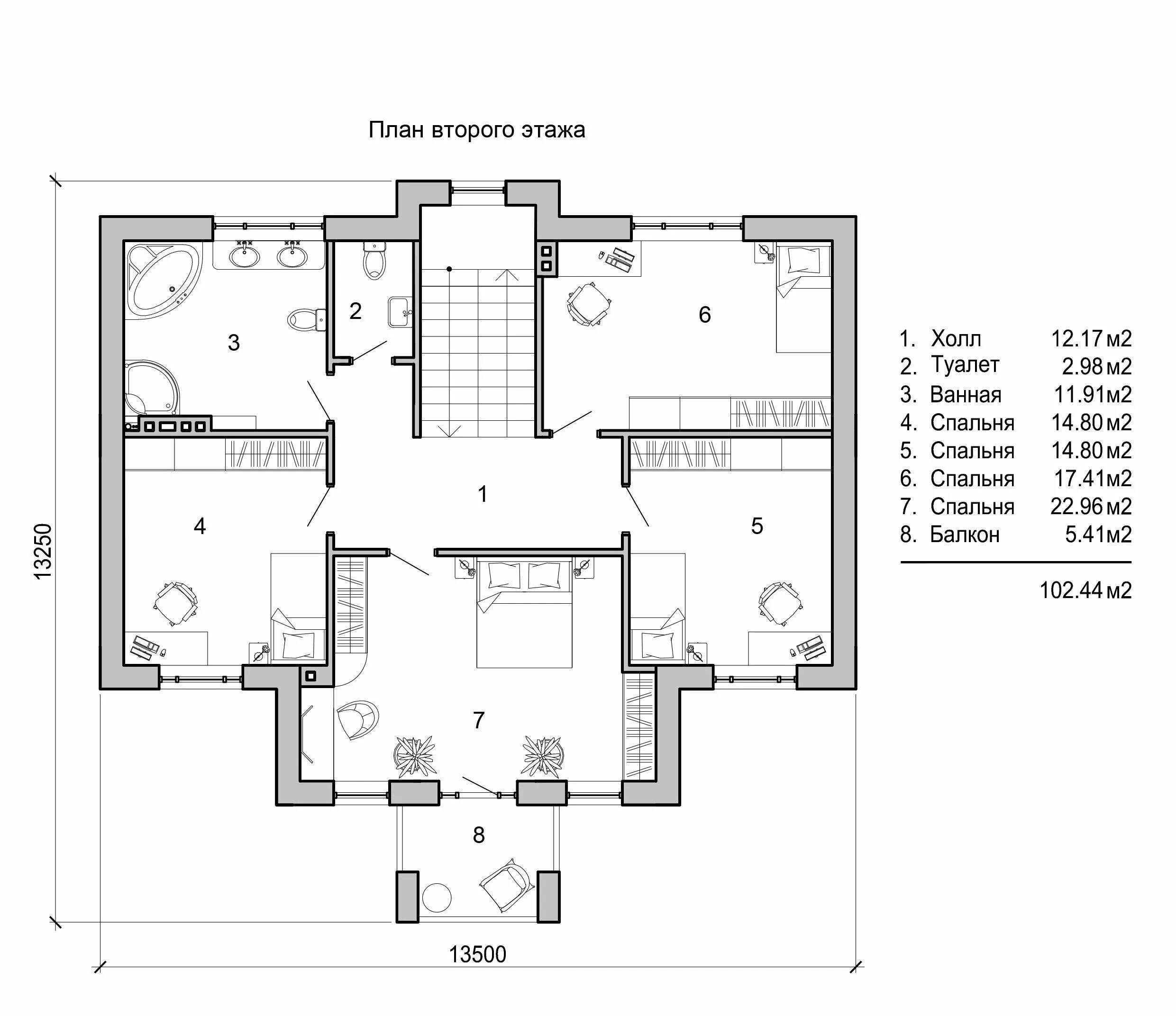
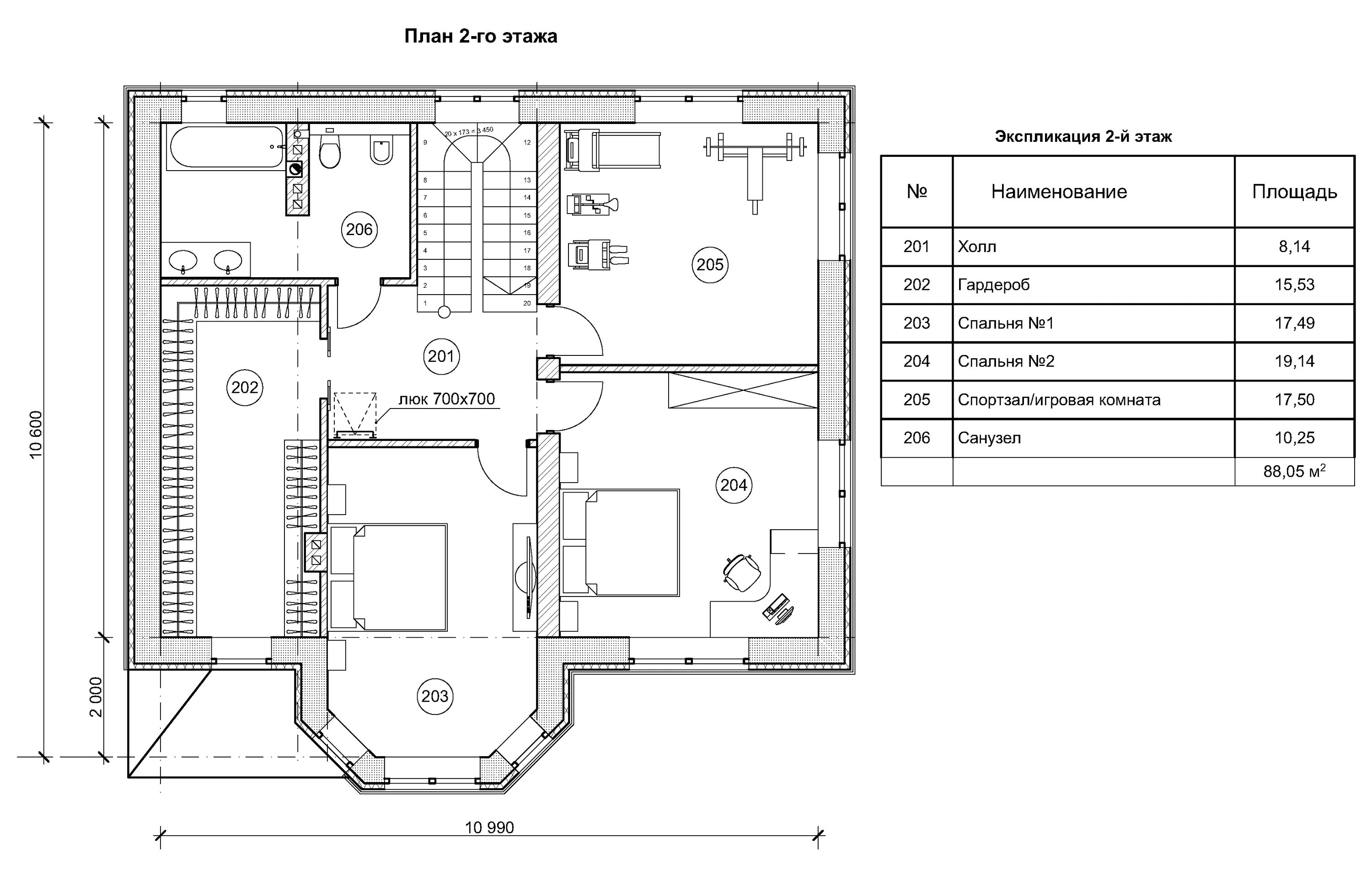
Дом чертежи проект 2 этаж