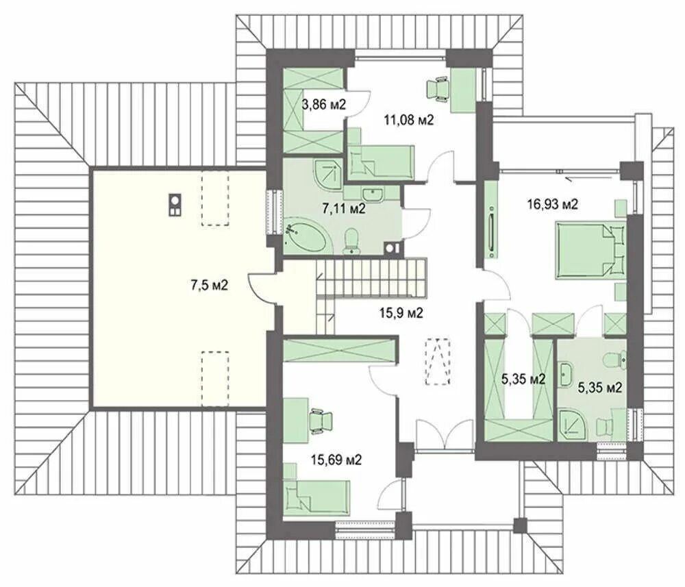
Дом герцог 1