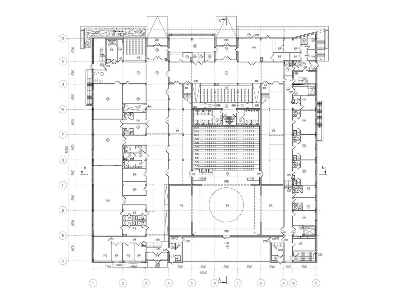
Дом молодежи план