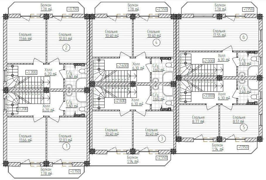
Дом на 4 входа проект