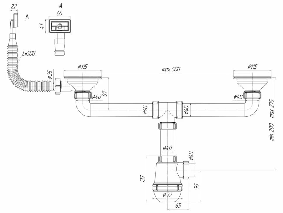
Два сифона