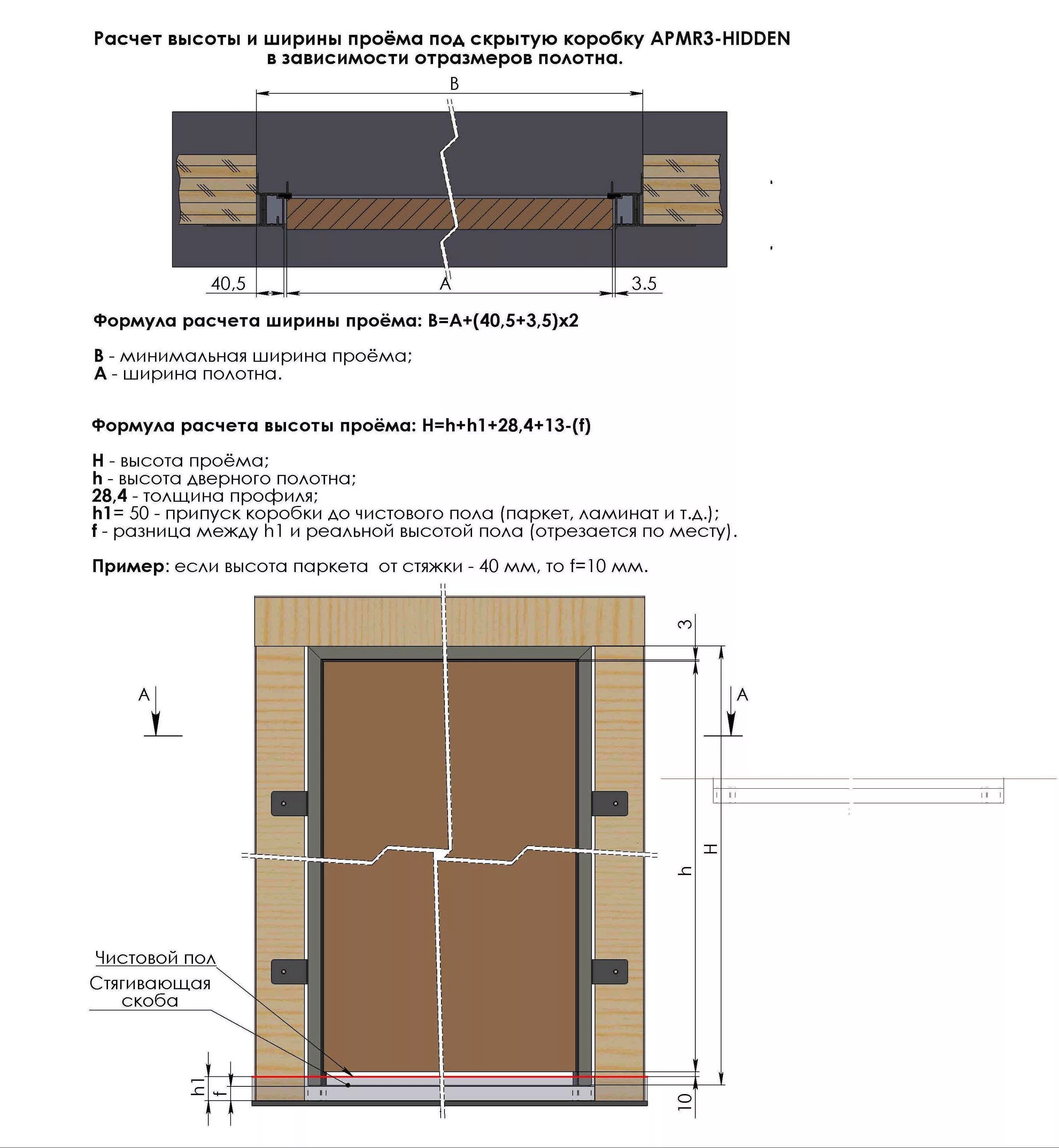
Дверной проем под межкомнатную дверь