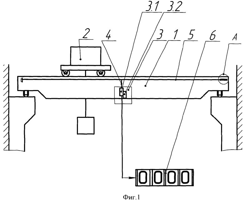
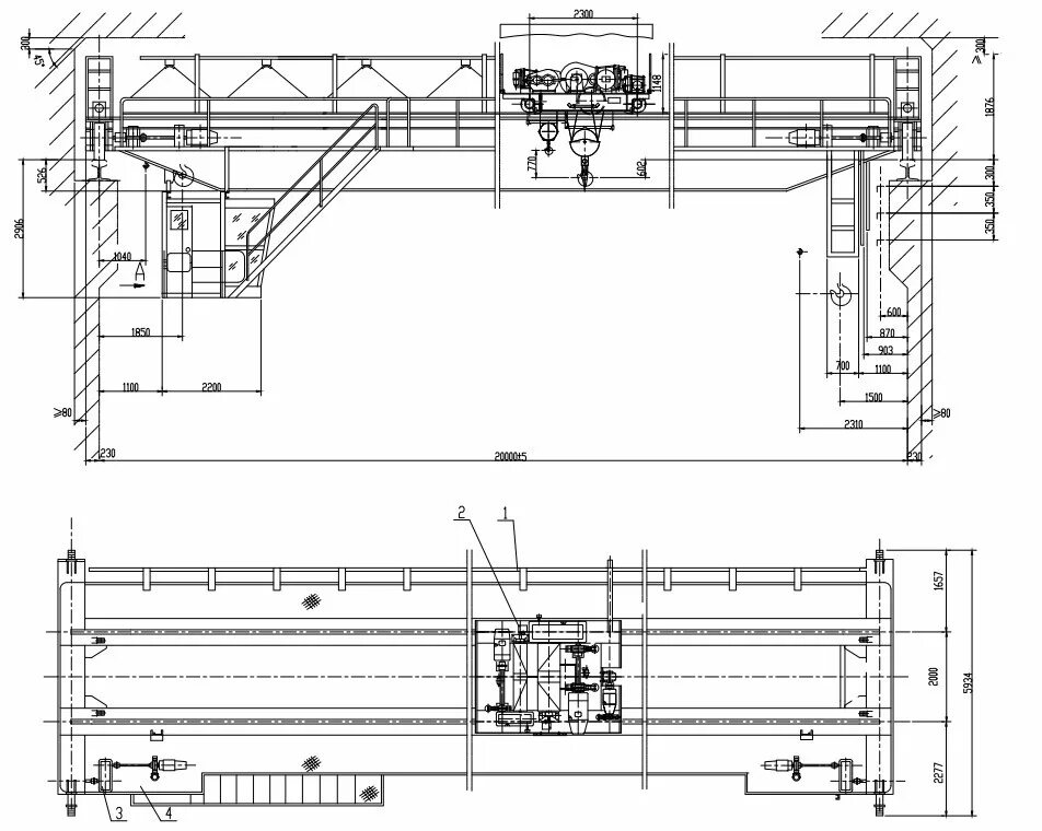
Движение мостового крана